|
|
|||||||||||||||||||||
小商いの御成アパートメント |
||||||||||||||||||||||
|
||||||||||||||||||||||
|
||||||||||||||||||||||
|
||||||||||||||||||||||
|
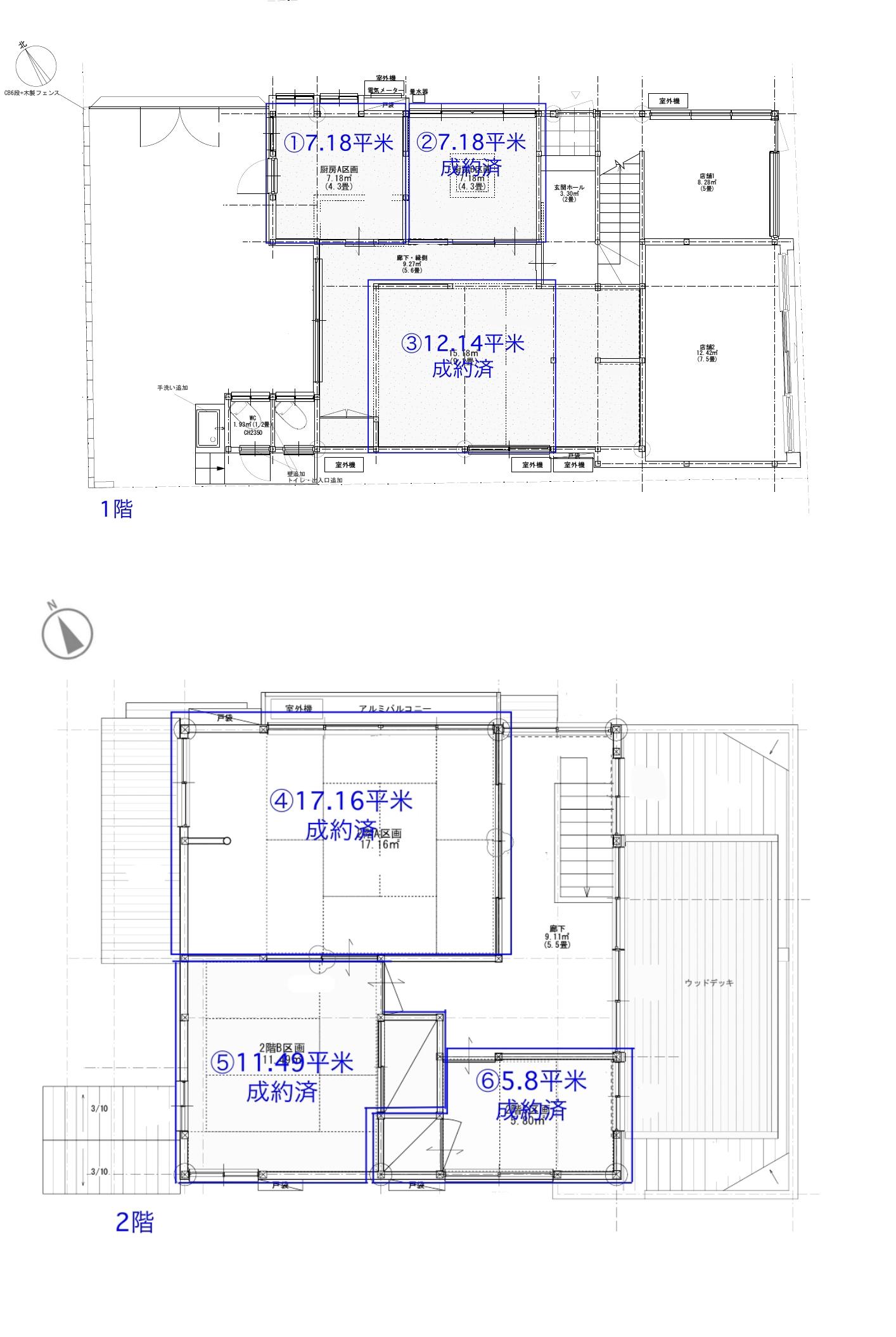
僕らのホームでもある御成通りに、なんだか面白いことが起こりそうな予感と期待をヒシヒシ感じる築70年余りの一軒家があります。鎌倉駅徒歩2分のこの場所で、一緒になって商いを始めたいという方を募集します。 鎌倉駅西口から続く御成商店街。地域に根ざしたローカルの人々にも愛される店が立ち並ぶ、(そして僕らの事務所もひっそりと佇んでいる)愛すべき商店街です。小町通りほど賑やか過ぎることもなく、子どもと一緒にゆっくり散策できるくらいのほどよい賑わい。物件はそんな商店街に面しています。 もしかしたら、そのまま売ったり一棟貸してしまう方が簡単かもしれません。でもオーナーが考えているのは、祖父の代から守ってきたこの家を色んな人達に使ってもらうこと。そして長く愛される場所になってほしいということ。そんな想いに応えるべく、ある意味チャレンジングな試みですが、建物内部を小分けにして賃貸することになりました。 各区画はそこまで広くありませんし、完全に仕切られている訳でもありません。入居者がお互いに声をかけ合ってコミュニケーションを図りながらより良い空間にしていってほしい、というのがオーナーの願いです。僕個人的にも、住人が肩を寄せ合って暮らす昔ながらの木造長屋のような、そんな場所になってくれたら良いなと思っています。 今回募集するのは、オーナーの祖父の代から住居として使っていた裏側1階部分の庭に面した区画①。裏と言っても、通りから砂利敷きの路地を入ってすぐ。通りから1本入るこのアプローチは、ちょっとした隠れ家感も演出してくれる気がします。ちなみに通りに面した2区画は、以前からアンティーク小物や衣服の店舗が入っています。 業態に関しては要相談ですが、1階は飲食や物販というイメージです。区画①にはちょっとした倉庫もついているので、使い方の幅は意外と広め。たとえば、テイクアウト中心の飲食店や予約制の小さなサロン、こだわりの本を並べたミニ本屋など個性ある出店にもぴったりです。 建物はこれまで増築や改築したりしている影響なのか、床の傾きなどの不具合が出てきているため、現在、耐震補強や減築の工事を行っており不安の無い状態で貸し出す予定です。さらに、現状、圧迫感のある裏庭は張り出した風呂場部分や2階のトイレを減築してスッキリオープンな共有スペースに、平たい屋根部分はウッドデッキやベンチを設置して、江ノ電や商店街をぶらぶらする人たちを眺めながら休憩できる共有スペースにする計画も。他にも出入り口を裏庭側にも設けたり外トイレを造ったり、ワクワクする改修計画はありますが詳細は現地にて。 打合せの最後に、オーナーの祖父宛の書簡に添えられていたという、約100年前の地図を見せてもらいました。今では想像もできませんが、当時の御成商店街には家がほとんどなく、麦畑が広がり、小川が流れていました。これからの100年で果たしてどんな町になっていくのか、やはり想像もつきませんが、100年先も愛されるような場所になっていってほしいと願っています。 ※全て税込 区画① 13.2万円/面積:7.18平米+倉庫 区画② 成約済/面積:7.18平米+倉庫 区画③ 成約済/面積:12.14平米 区画④ 成約済/面積:17.16平米 区画⑤ 成約済/面積:11.49平米 区画⑥ 成約済/面積:5.8平米 ※間取り図は予定している改修後(2025年12月工事完了予定)の間取り図となり現況とは異なります。改修内容は変更となる可能性もございます。また写真は改修前の写真です。現在は改修工事が進んでいるため写真と現況は異なります。予めご了承ください。 |
![]() |
|
| 1階の区画①|現在はキッチンですが全て撤去となります |
|
| 外観|小町通りほど賑やか過ぎることもなく、子どもと一緒にゆっくり散策できるくらいのほどよい賑わい |
|
| 1階の区画②|現在は居間として使っています。窓の向こうは通りから入ってくる砂利道 |
|
| 外観|鎌倉駅までは徒歩2分ほど。走れば1分もかかりません |
|
|
| >>大きな地図で見る  |
| 賃料 | 13万2,000円(税込) | 専有面積 | 7.18㎡ |
| 保証金 | 6ヶ月 | 礼金 | 1ヶ月 |
| 償却 | なし | 管理費 | なし |
| 所在地 | 鎌倉市御成町 | ||
| 交通 | JR横須賀線「鎌倉」駅 徒歩2分 | ||
| 建物構造 | 木造 2階建て | 所在階 | |
| 築年 | 築年不詳 | 取引態様 | 媒介 |
| 設備 | 公営水道/公共下水/都市ガス | ||
| 備考 | 駐車場無/業態は要相談/民泊不可/保証会社加入必須/保証会社初回保証料:月額賃料等の100%〜/普通借家契約:2年間/更新料:新賃料の1ヶ月分/仲介手数料:成約賃料1か月+税/要火災保険契約 | ||
| 情報修正日時 | 2025年10月10日 | 情報更新予定日 | 2025年12月25日 |
あなたにおすすめの物件


