|
|
|||||||||||||||||||||
腰越の風景がここに |
||||||||||||||||||||||
|
||||||||||||||||||||||
|
||||||||||||||||||||||
|
||||||||||||||||||||||
|
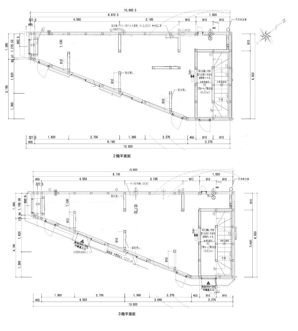
窓から見えるのは江ノ島と海、そしてその手前を走る江ノ電。江ノ島駅から腰越駅の間は、ちょうど商店街の中を路面電車のように走行する区間で、間近を走る江ノ電はとても迫力があります。窓から見下ろせるというのも、レアな感じです。 そんな腰越らしい風景のど真ん中にあるのが本物件です。古くからあった魚屋さんが建て替え工事を行い、1階には魚屋さんが手がけるお惣菜屋さんが入居しています。その2階、3階部分の募集です。 それぞれの室内を見て、まず思うことは木造ビルならではの構造壁、柱の多さでしょうか。各階の全体的な形も変形なのですが、それに加えて壊せない構造体があることが、内装を決定していく上では悩ましく、ですが最適解を発見できたときの嬉しさ、そこまでの苦労の面白さもあると思っています。 それぞれの階にトイレを作るためのスペースは作ってあるので、それ以外の部分をどうやりくりするかという感じ。3階の方が、ドアから手前部分に空間を広くとれていて、逆に2階はここに厨房がくるであろうというのが分かりやすいです。 例えば、2階は厨房以外の部分は窓際にカウンター席を作って。観光地巡りの合間に、麺料理やタコスなどの軽食を食べるようなカジュアルな飲食店はどうでしょうか。夜はサクっと立ち飲みができるようなような店でもいいと思います。 3階は2階に比べると構造体が少ないので、もう少し座席を確保したい業態でもありだと思います。例えばネイルサロンとか、プライベート感のあるマンツーマンのヘアサロン等でしょうか。3階ということもあり、予約してくる店というのが安心かもしれません。 もし、2階3階を一括で借りるということも検討できるとしたら、2階にキッチンとカウンター席、3階はテーブル席をというのもありなのかもしれませんね。 2、3階へはひと一人分くらいの共用階段で上がり、エレベーターはありません。駐車スペースや駐輪スペースもないので悪しからず。屋上も専有できるものではなく、エアコン室外機置場など、ビル全体のメンテナンスのための場所です。 いろいろと難しい点はあるものの、この場所に個性が光る店ができてくれたらと思います。最近、腰越には東京で腕を振るったイタリアンシェフの店、土日だけ営業する焼き菓子屋、夫婦で営む小さなコーヒーロースターなど、ニューフェイスな店も増えています。ぜひ、仲間入りを果たして欲しいなと思います。 ※2階、3階それぞれの募集です。 2階:賃料15万円(税込み)・専有面積:34.57平米 3階:賃料15万円(税込み)・専有面積:34.57平米 その他、諸条件については同一です。 |
![]() |
|
| 細長い形をしたビル |
|
| 3階から見た江ノ電。その先に海と江ノ島も見えます |
|
| 3階の室内 |
|
| 3階の室内 |
|
|
| >>大きな地図で見る  |
| 賃料 | 15万円(税込) | 専有面積 | 34.57㎡ |
| 敷金 | 3ヶ月 | 礼金 | 1ヶ月 |
| 償却 | 解約時賃料の1ヶ月分 | 管理費 | なし |
| 所在地 | 鎌倉市腰越三丁目 | ||
| 交通 |
江ノ島電鉄線「腰越」駅 徒歩1分 江ノ島電鉄線「江ノ島」駅 徒歩8分 |
||
| 建物構造 | 木造 3階建て | 所在階 | 2,3階 |
| 築年 | 2025年 | 取引態様 | 媒介 |
| 設備 | 上下水道/電気 | ||
| 備考 | 募集戸数:2戸/普通借家契約3年間/更新料:新賃料の1ヶ月分/飲食店可/駐車場・駐輪スペースなし/用途地域:近隣商業地域/仲介手数料:賃料の1ヶ月分+消費税/要火災保険契約 | ||
| 情報修正日時 | 2025年10月20日 | 情報更新予定日 | 2025年12月25日 |
あなたにおすすめの物件


