|
|
|
||||||||||||||||||
湘南らしい風と音 |
||||||||||||||||||||
|
||||||||||||||||||||
|
||||||||||||||||||||
|
||||||||||||||||||||
|
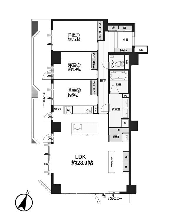
川沿いの風と電車たちの音。これが交わるこの場所には、湘南らしい風と音が流れているように思えるマンションでした。 近くを通るとつい見上げてしまう、片瀬海岸の川沿いにあるマンション。塔のような外観で、きっと眺めがいいんだろうなと思っていました。 実際に室内に入ると、南向きのLDKは約30帖と広々としていて、目の前には江の島が見えます。窓を開けたらカーテンも喜ぶような心地よい風が抜けていきます。マンションの近くには境川が流れていて、海からの潮風が鮮度よく届くのでしょう。 ここまでは想定していたのですが、他にも楽しむことができる眺めを見つけてしまいました。まず、南側バルコニーから見下ろすとマンションのすぐ近くを江ノ電が通過していきます。住宅の間を緑の列車が走る様子はこの湘南・鎌倉エリアを思わせる景色です。 また、南東側のバルコニーにでると湘南モノレール線が見えます。湘南江の島駅は始発終着駅であり、モノレールがダダダダ、スーっと音を奏でながらホームを出入りする様子が風景のひとつとして馴染んでいました。 LDKの他に、洋室が3部屋。家族みんなで集まる場所とそれぞれの個室が確保された間取りです。洋室3部屋は、公園の緑や角度によっては江の島も見えます。川の向こうの小学校の賑わいもやんわり聞こえてきてのどかな時間も流れています。 リビングにあるカウンターは子供の宿題や家事のすき間時間のワークスペースとして使う場所のようです。作業していてちょっと立ち上がれば江ノ島や夕陽が見えそうです。
|
![]() |
|
| LDKバルコニー眺望|川の流れの先に、江の島 |
|
| 川の向こうの学校の賑わいがやんわり聞こえます |
|
| 西側のバルコニー |
|
| 洋室①│約7.2帖 |
|
|
| 価格 | 8,998万円(税込) | 専有面積 | 107.23㎡ |
| 管理費 | 28,500円 | 修繕積立金 | 21,020円 |
| 所在地 | 藤沢市鵠沼海岸一丁目 | ||
| 交通 |
小田急江ノ島線「片瀬江ノ島」駅 徒歩9分 江ノ島電鉄「江ノ島」駅 徒歩4分 湘南モノレール「湘南江の島」駅 徒歩4分 |
||
| 建物構造 | 鉄骨鉄筋コンクリート造 14階建て | 所在階 | 4階 |
| 築年 | 1991年 | 土地権利 | 所有権 |
| 敷地面積 | 都市計画 | 市街化区域 | |
| 用途地域 | 近隣商業地域 | 建蔽率/容積率 | |
| その他費用 | 取引態様 | 媒介 | |
| 設備 | 都市ガス/公営水道/公共下水 | ||
| 備考 | ペット不可/分譲会社:ミサワホーム株式会社/施工会社:株式会社間組/管理会社:株式会社東急コミュニティー/管理形態:全部委託/総戸数:38戸/バルコニー面積:24.74㎡/現況:空室/引渡時期:相談/駐車場:空き有 (月額15,000~20,000円) /駐輪場:要確認 ※駐車場はすべて2025年10月26日現在の状況です。/事務所使用不可、民泊など不可 | ||
| 情報修正日時 | 2025年11月9日 | 情報更新予定日 | 2025年11月25日 |
あなたにおすすめの物件


