|
|
|
||||||||||||||||||||
草樹とあそぶ家 |
||||||||||||||||||||||
|
||||||||||||||||||||||
|
||||||||||||||||||||||
|
||||||||||||||||||||||
|
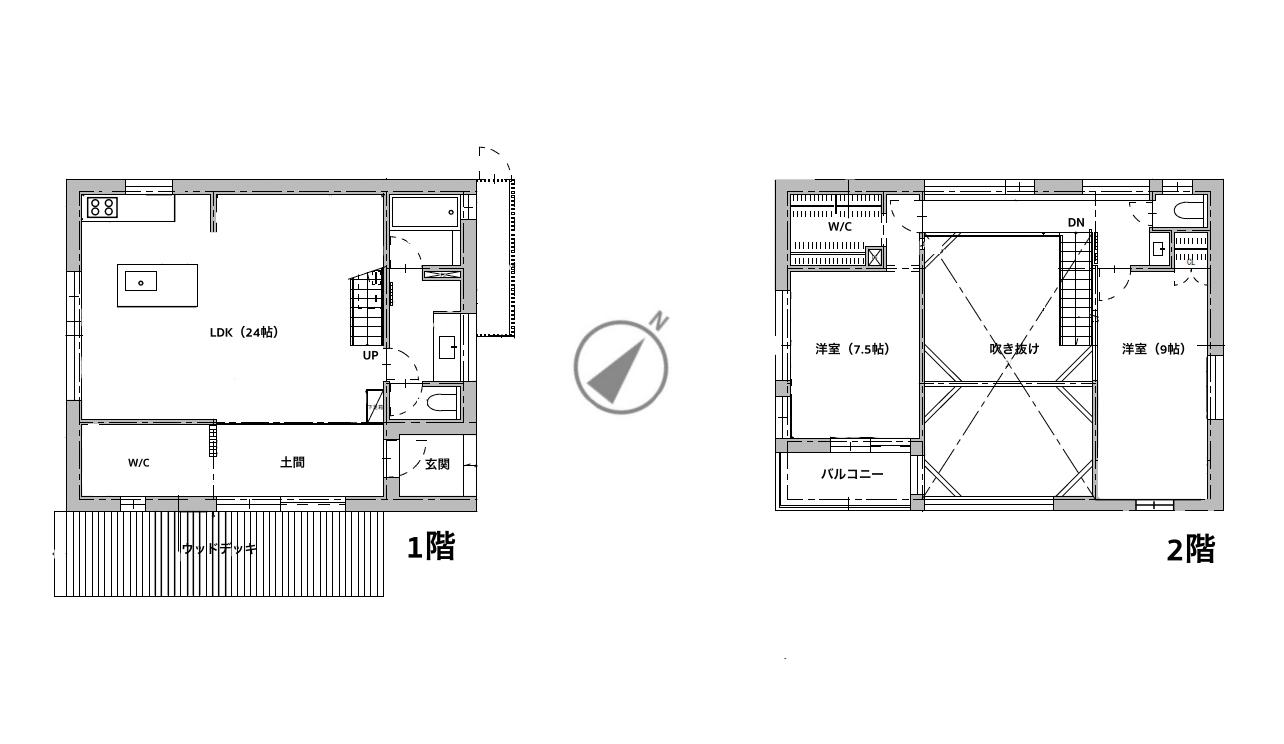
haluta(ハルタ)設計の注文住宅(現在の社名は「Juuri(ユーリ)」)。それだけで説明は十分かもしれません。暑い日も寒い日も快適な室内空間から山の緑や庭の植物たちを愉しめる家です。 haluta(ハルタ)といえば北欧ヴィンテージ家具をイメージする人が多いかもしれません。元々はデンマークから仕入れた古くて良い家具を丁寧に修復して販売する事業を軸とした会社でした。新品よりも値は張るものの、長い時間をかけて変化した風合いや当時のデザインは何ともいえない良さがあります。ちなみに僕もファンの一人です。 そんな会社が設計した家が建つのは鶴岡八幡宮にほど近い西御門エリア。両サイドから山が迫って来るような谷戸と呼ばれる景観の中にあって、ライトグレーの外装に軒出がほとんどないシンプルな外観は、自然と周囲に溶け込んでいて、なんの違和感も感じません。 家のスペックをしっかりと紹介しようとするとコラムが2つ書けるくらいのボリュームになりそうなので、その快適性についてはぜひ現地で体感ください。特徴をシンプルにお伝えすると断熱性と空調性能がとても高いということ。この2つが「心地よい空気」をつくり出し快適性を高めています。 デンマーク製の断熱材「ROCK WOOL」で屋根から壁、床をすっぽり覆い、窓は木製サッシのトリプルガラスを使用することで室内温度は年間を通して22度前後に。また熱を再利用する熱交換式換気システムや除湿型放射冷暖房のパネルヒーターが機能して、エアコンやストーブ無しで一年中快適かつ省エネにも繋がっています。更にこの家には太陽光パネルと蓄電池が設置されていることもあり、電気代がかからない月もあるのだとか。 もちろん快適に過ごすにはデザインも大事な要素です。まず玄関を入った先に待っているのは、家の半分以上をくり抜いたようにドーンと巨大な吹き抜けのリビング。ここまでの空間を吹き抜けにするのは少しもったいないような気もしますが、そんなことは野暮だと思えるくらい爽快で気持ちいいんです。 南側に取り付けられたワイドな掃き出し窓とハイサイドライトは自然を映し出す大きなモニターのよう。庭で育つ植物や向こう側の山の緑をいつでも眺めることができます。トップライトからも静かに光が落ちてきて日中は照明いらず。 リビングとは対照的に天井高を抑えたダイニングキッチンには、幅の広いピクチャーウィンドウと押し出し窓。山の緑が白い壁や天井に浸透してきて、木材で統一されたキッチン周りの空間はほぼ山と同化状態。2階の寝室も同様でどこの窓を切り取っても緑が映えるのが嬉しいですね。 左右非対称にドアや窓を配置したり、玄関の土間を横にスッと伸ばして反対側のマッドルームまで繋げてみたりと、さりげなくて目立ちにくい部分も遊び心のある造りに。全体的に主張し過ぎないデザインは、レイアウトするインテリアを引き立ててくれるように感じます。 気持ちいいのは家だけではありません。陽当たりの良い南東向きの庭には、オーナーが手塩にかけて育てたたくさんの植物達。ロシアンオリーブ、フェイジョア、レモン、マスカット、キウイ、ブルーベリーetc…。これでもまだほんの一部ですが、四季折々に花をつけて実がなり、それを収穫できるという、目でも舌でも愉しめる庭です。 そしてもう一つ紹介したいのがオーナー手作りの鶏小屋。半透明の片流れ屋根と金属網で覆われたオープンな小屋は、鶏にとってストレスフリーな快適空間だったのではと想像できます。オーナーが飼育していた時は毎朝採れたての卵が食卓に並んでいたそうです。ここで鶏を育てたいという方も大歓迎です。 山の緑とオーナーこだわりの庭、そして快適性を突き詰めた家。それらが窓を通して緩く繋がっていました。 【内覧会を開催します】 日時:12月20日(土曜日) 11時〜15時 設計を手がけた「Juuri(ユーリ)」のスタッフが家の見どころをご案内します。 ※内覧会は予約制となります ※現在賃貸中のため内見のご案内は12月7日以降となります。 ※写真は前回募集時のものです。 |
![]() |
|
| 正面外観|ライトグレーのシンプルなデザインは周囲と調和しています |
|
| ダイニング|山の緑が白い壁や天井に浸透してきて山とほぼ同化状態 |
|
| 吹き抜けのリビング|ワイドな掃き出し窓ハイサイドライトは自然を映し出す大きなモニター |
|
| 2階寝室|ピクチャーウィンドウの切り取る緑の世界 |
|
|
| >>大きな地図で見る  |
| 賃料 | 39万円 | 専有面積 | 105.37㎡ |
| 敷金 | 1ヶ月 | 礼金 | 1ヶ月 |
| 償却 | なし | 管理費 | なし |
| 所在地 | 鎌倉市西御門一丁目 | ||
| 交通 | JR横須賀線「鎌倉」駅 徒歩23分 | ||
| 建物構造 | 木造 2階建て | 所在階 | |
| 築年 | 2021年 | 取引態様 | 媒介 |
| 設備 | 公営水道/公共下水/オール電化 | ||
| 備考 | ペット相談可/定期借家契約(期間:5年/再契約:相談)/駐車スペース有(2台分)※車種による/土砂災害警戒区域(一部土砂災害特別警戒区域)/事務所兼住居可/楽器相談/保証会社加入必須/保証会社初回保証料:月額賃料等の50%〜/保証会社更新料:年額10,000円〜/仲介手数料:成約賃料1か月+税/要火災保険契約 | ||
| 情報修正日時 | 2025年11月30日 | 情報更新予定日 | 2025年12月25日 |
あなたにおすすめの物件


