|
|
|||||||||||||||||||
密やかマリーナでご褒美ブルー |
||||||||||||||||||||
|
||||||||||||||||||||
|
||||||||||||||||||||
|
||||||||||||||||||||
|
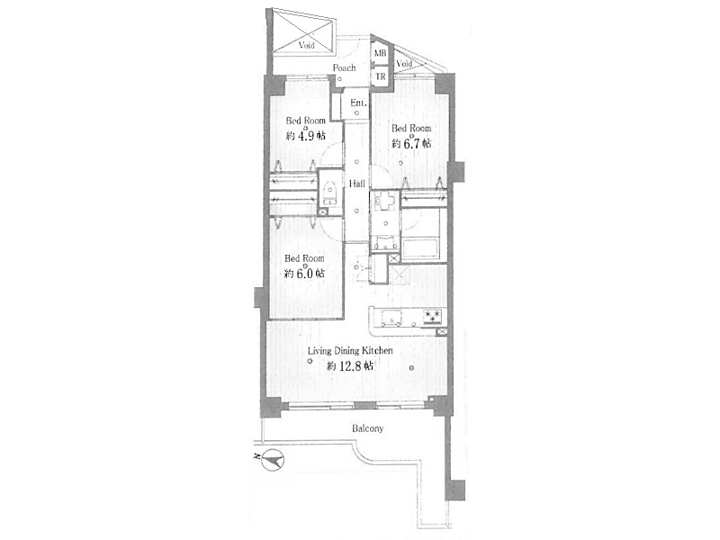
室内に入り、まずはバルコニーへ直行してしまいました。目の前に広がるのは視界の2/3を占める程の真っ青な空と海。奥にちょこんと、おまけの富士山!逗子マリーナの赤い屋根も可愛く、青色に映えてくれています。 寄せる波の音、海鳥の鳴く声、潮の香り、澄んだ空気を浴び、徐々に心がほぐれていくのを感じます。家にいる時間の大半は、海を眺めてぼーっと過ごしたくなりますね。バルコニーは西向きなので、きっと夕焼けも綺麗に見えるはず。 目線を少し右に逸らせば、山々の紅葉と小坪漁港を見渡せます。海と山が同時に見えるレアさもありますが、リゾートを思わせる建物の隣に漁師町、というギャップも面白いポイントなのです。ボートのモーター音が聞こえてきたら、漁船が出航する合図。漁師さんをいってらっしゃいと見送りましょう。 マンションの外観は白と青のタイル張りで爽やか。建物自体に若干の年季を感じながらも、丁寧に管理や手入れがされていると感じました。エントランスにはヤシの木が並んでいて、レトロなリゾートホテルへ来たように思わせてくれます。 現在、室内はフルリノベーション中(12月中旬竣工予定)です。設備はまだ取り付けられていませんが、白を基調としていてシンプルな印象。6帖のベッドルームからは海を覗けるので、主寝室としてホテルライクな部屋にしてもいいですし、お子さんの遊び部屋にすればリビングから様子を見守れますね。 最後に立地の話を。逗子マリーナの対岸にあるのが小坪マリーナ。小坪四丁目というと、いわゆる漁師町の雰囲気が残るまちで、このマンションはその海の際に建っています。少し奥まった場所にあるので、周辺環境は静か。そっとしておいてくれる感じが心地がいいと思えます。ただし、海に近いが故に塩害があることにはご注意ください。 良い意味で派手さはない、密やかな小坪マリーナ。空と海の移ろいを眺めて過ごせば、いつもより時間がのんびり感じられるはずです。ここで住む方々に与えられるご褒美の景色を是非楽しんでいただきたいと思います。 |
![]() |
|
| バルコニー(右端)からは山々の紅葉と漁港が見渡せます。 |
|
| バルコニー(左端)からの景色。 |
|
| バルコニーは一部丸みを帯びています。海に飛び出ているよう。 |
|
| バルコニー端から見てみる。 |
|
|
| >>大きな地図で見る  |
| 価格 | 6,980万円(税込) | 専有面積 | 72.74㎡ |
| 管理費 | 15,100円 | 修繕積立金 | 11,420円 |
| 所在地 | 逗子市小坪四丁目 | ||
| 交通 |
JR横須賀線・湘南新宿ライン・江ノ島電鉄線「鎌倉」駅 バス12分 「小坪」バス停 徒歩6分 京浜急行逗子線「逗子・葉山」駅 バス15分 「小坪」バス停 徒歩6分 JR横須賀線・湘南新宿ライン「逗子」駅 バス15分 「小坪」バス停 徒歩6分 |
||
| 建物構造 | 鉄筋コンクリート造 7階建て | 所在階 | 3階 |
| 築年 | 1997年 | 土地権利 | 所有権 |
| 面積 | 都市計画 | 市街化区域 | |
| 用途地域 | 第二種住居地域 | 建蔽率/容積率 | |
| その他費用 | 取引態様 | 媒介 | |
| 設備 | 公共水道/公共下水/都市ガス | ||
| 備考 | ペット不可/分譲会社:東急不動産株式会社/施工会社:株式会社青木建設/管理会社:東急コミュニティー株式会社/総戸数:66戸/バルコニー面積:12.6㎡/現況:空室/引渡時期:相談/CATV使用料:550円(月額)/駐車場(2025年12月8日時点で空き有り):9,000円~(月額/台)/駐輪場(空き状況要確認):300円(月額/台)/バイク置場(空き状況要確認):1,000円~(月額/台)/トランクルーム(空き無し):2,500円(月額) | ||
| 情報修正日時 | 2025年12月6日 | 情報更新予定日 | 2026年3月26日 |
あなたにおすすめの物件


