|
|
|||||||||||||||||||||
波と日差しに誘われて |
||||||||||||||||||||||
|
||||||||||||||||||||||
|
||||||||||||||||||||||
|
||||||||||||||||||||||
|
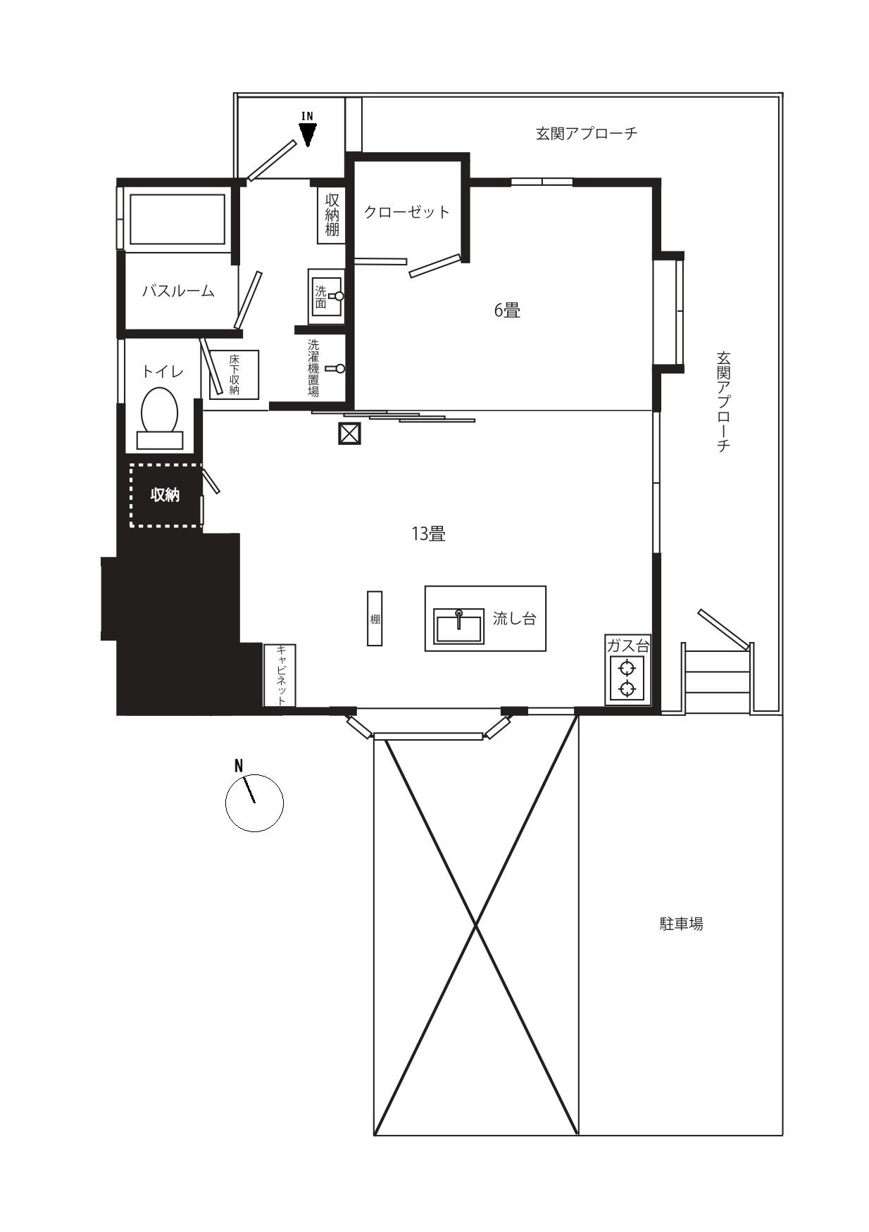
室内に入った瞬間、ふっと心がゆるみます。ほっこりとした日差し、感じる湘南らしいリラックスした雰囲気。1階の部屋でありながら、道路から少し高さがあるのと、前面道路とその前にあるマンションまでも距離があること。敷地内の大きな木がいい具合に緑を感じさせてくれ、この環境が作られているのです。 とにかく明るい南向きの室内。オーナーが取得した際に惚れ込んだという無垢材の床を活かすリノベーションをと、味わい豊かな内装に仕上げました。この部屋の顔となりそうな素敵なキッチンは、コンロと作業台が分かれるタイプにして、ライブ感が楽しめるように。作業台でコーヒーやおつまみを用意する時間が楽しみになりそうです。 浴室はタイル貼りで可愛らしく。レインシャワーの設置は、湘南でサーフィンを楽しむ方が住むことを想定しているのかな。もちろん波乗りしなくても気持ちのいい設備です。洗面台はコロンとレトロなタイプ。よく見ていくと、室内に設置されている扉や収納棚はアンティークで味のあるもの。のっぺりとした内装では自分らしくない、と感じていた方にピンとくる内容だと思えます。 間取りは1DKという感じで、洋室との間にある引戸でダイニング部分と居室を分けることができます。普段は扉を開けて開放的に、友達が来るときだけ扉を閉めてプライバシーを確保。そんな使い方ができそうです。扉を閉めてもそこまで圧迫感がないのは、天井がやや高いからでしょうか。これは嬉しいポイントなので、ぜひ現地にてご確認を。 最寄り駅からの足はというと、「テラスモール湘南」がある辻堂駅からバス便で。もしくは小田急線の鵠沼海岸駅から徒歩か自転車でついっと家まで帰るというのが便利でおすすめです。近隣のお店は地元の人に人気の蕎麦屋やアイスクリーム屋さんなどなど、自転車で散策すると楽しいと思います。もちろん、サーフィンにも出かけましょう。歩いても海までは7分程。自転車で思い立ったときにすぐに波に乗れる距離感です。 敷地内に駐車場もあるため、例えば都内での打合せには車で行く。休日は少し足を伸ばして葉山や横須賀方面にも遊びに行きたい。そういうライフスタイルの方にも便利だろうと思います。 海にも近くて、日差しがたっぷりと差し込み気分が上がる部屋で過ごす日々。憧れだった湘南暮らしの一歩目にどうぞ。 ※室内の家具は希望があれば残置物として貸与可 ※住居兼事務所利用相談可 |
![]() |
|
| 引戸を開けておけば開放的なワンルームという感じでも使えます |
|
| 南向きの窓は出窓になっていて、これがまた可愛いのです |
|
| キッチンでの作業が楽しみになりそう |
|
| こちら側がベッドルームとなりそうです |
|
|
| >>大きな地図で見る  |
| 賃料 | 15万円 | 専有面積 | 37.50㎡ |
| 敷金 | 2ヶ月 | 礼金 | なし |
| 償却 | なし | 管理費 | なし |
| 所在地 | 藤沢市辻堂東海岸四丁目 | ||
| 交通 |
小田急江ノ島線「鵠沼海岸」駅 徒歩18分 JR東海道本線「辻堂」駅 バス9分 「湘洋中学校前」バス停 徒歩4分 |
||
| 建物構造 | 木造 2階建て | 所在階 | 1階 |
| 築年 | 1984年 | 取引態様 | 媒介 |
| 設備 | 都市ガス/公営水道/公共下水 | ||
| 備考 | ペット相談可(猫不可、小型犬相談可、それ以外は応相談、敷金積み増しの可能性有)/定期借家契約(期間:2年間/再契約:相談)/募集戸数:1戸/庭有/敷地内駐車スペース有(無償)/駐輪スペース有(無償)/Wi-Fi使用料無料/賃料保証会社:加入必須(初回保証委託料・賃料の50%~・更新料1年毎に10,000円~)/仲介手数料:賃料1ヶ月分+消費税/要火災保険契約 | ||
| 情報修正日時 | 2026年1月22日 | 情報更新予定日 | 2026年3月25日 |
あなたにおすすめの物件


