|
|
|||||||||||||||||||||
アウトドア長屋のニューカマー |
||||||||||||||||||||||
|
||||||||||||||||||||||
|
||||||||||||||||||||||
|
||||||||||||||||||||||
|
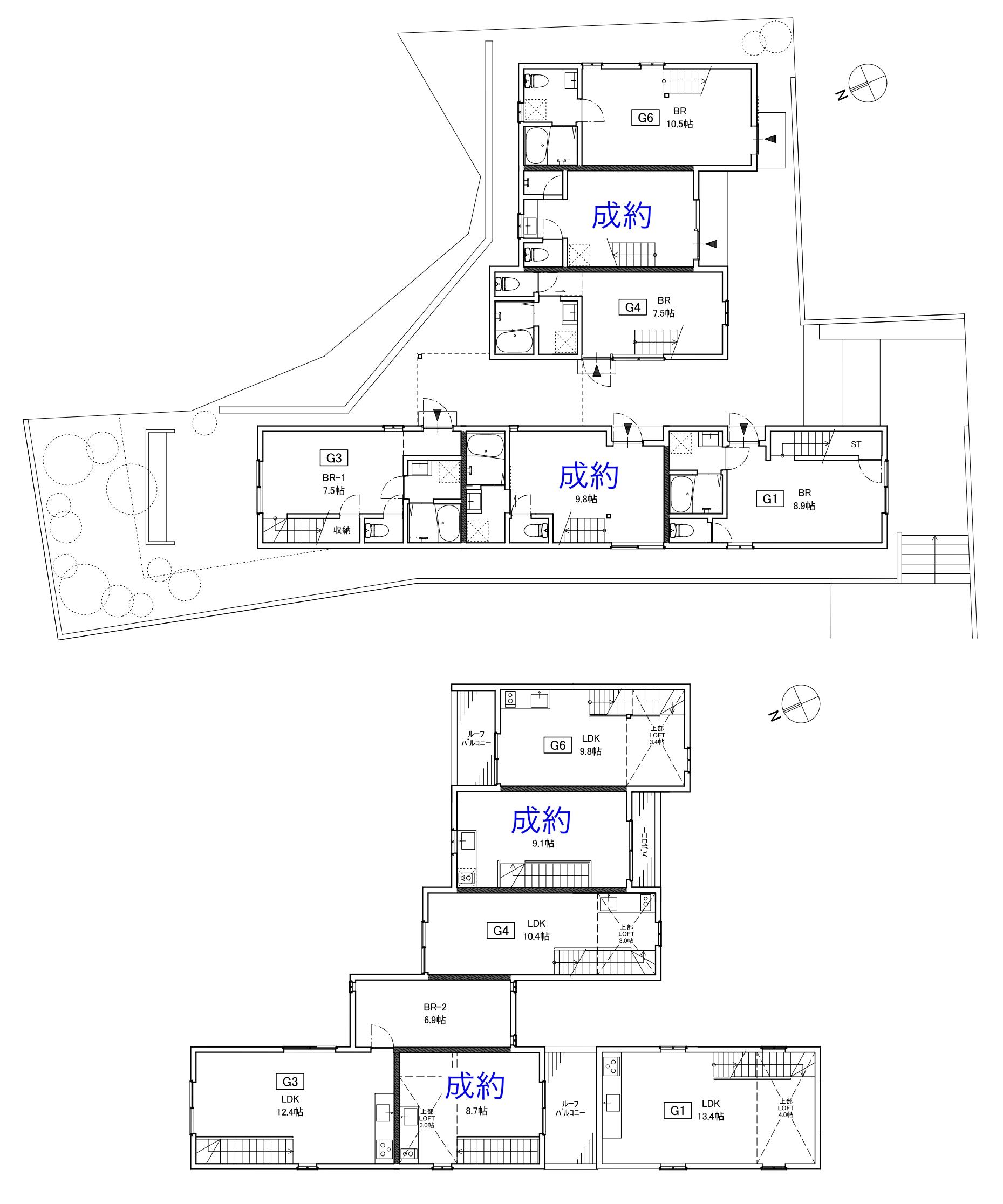
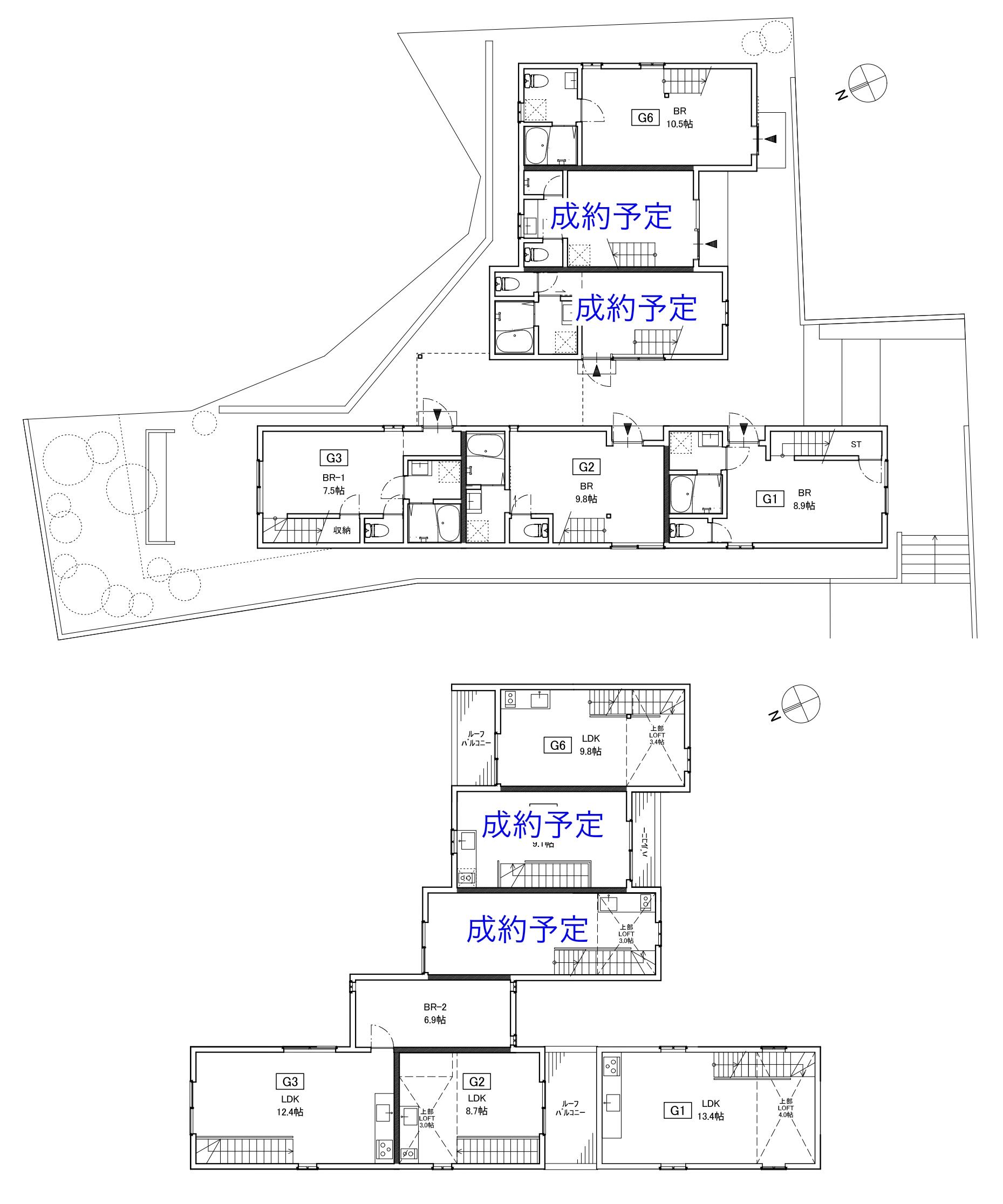
長屋といえば街中に建っているイメージですが、ここは緑あふれる自然が近いロケーション。近所同士のつながりを大切にしながらも、アイデア次第で自然環境を活用して面白いことを形にできそうな遊び心をくすぐるシェアビレッジです。 そんな場所にニューカマーが仲間入りしました。全6区画で、全て1階が土間のメゾネットタイプ。2階は勾配天井で開放感があり、G3以外は寝室として使えそうなロフトまで。サロンやアトリエ、事務所利用も可能なので、1階を作業スペース、2階を休憩スペースなど棲み分けもできそうです。バルコニーがついた部屋や専用庭のある部屋まで、それぞれの区画が均一のレイアウトではなく個性を効かせているところがポイントです。 敷地は山のすぐそば。朝は鳥のさえずりで目を覚まし、夜は虫たちのセッションを聴きながら眠りにつく、なんて自然を感じる生活も送れそうす。さらに、遠くまで見通せる高台の空き地やハイキングルートに続く山道、キャンプ場のようなBBQスペース、何かできそうな防空壕跡などアイデア次第で楽しくなりそうな素材が盛りだくさんです。 最後に注意点を3点ほど。1点目は収納がほとんどないので物が多い方はミニマリストになっていただく必要がありそうなこと、2点目はご近所同士のコミュニケーションが比較的活発で、BBQなどが定期的に開催されていたりするので、人付き合いが苦手な方は少し辛いかもしれないこと。 最後の3点目は、現在駐車場になっているスペースも含めてシェアハウスの建築が予定されているということ。工事期間中は施工の音など気になるかもしれませんが、全ての建物が完成したら、より素敵な空間になるはずです。 ペットの飼育(犬のみ)も相談できます。このユニークな長屋暮らしに興味のある方お待ちしています。 区画G1 賃料:16.8万円/面積:55.68平米+ロフト6.62平米 区画G3 賃料:18.8万円/面積:57.76平米(専用庭あり) 区画G4 賃料:14.3万円/面積:44.71平米++ロフト4.97平米 区画G6 賃料:14.3万円/面積:47.72平米+ロフト5.69平米 |
![]() |
|
| G4の1階|1階は全ての区画が土間。色んな使い方ができそうです |
|
| G4の2階|2階は勾配天井で開放感のある空間 |
|
| 共有部分|単調な形でなく動きがあります |
|
| 敷地内の様子(夏に撮影)|山がすぐそこなので、これでもかという緑 |
|
|
| >>大きな地図で見る  |
| 賃料 | 14万3,000~18万8,000円 | 建物面積 | 44.71㎡~57.76㎡ |
| 敷金 | 1.5ヶ月 | 礼金 | 1ヶ月 |
| 償却 | なし | 共益費 | 10,000円 |
| 所在地 | 鎌倉市西御門一丁目 | ||
| 交通 | JR横須賀線「鎌倉」駅 徒歩25分 | ||
| 建物構造 | 木造 2階建て | 所在階 | |
| 築年 | 2026年 | 取引態様 | 媒介 |
| 設備 | 公営水道/公共下水/都市ガス | ||
| 備考 | 定期借家契約(期間:2年/再契約:相談)/募集戸数:4戸/事務所利用可、サロン可、アトリエ可、民泊不可/ペット可(小型犬または中型犬(10kg)1頭まで※賃料+1万円、敷金+1.5ヶ月(償却1ヶ月))禁煙/楽器不可/駐輪場有(1台目無料/2台目月額1,000円)、バイク置き場有(空き有/月額2,000円/125ccまで)/駐車場有(空きなし/月額15,000円/2月26日現在)/事前清掃費事前預かり:80,000円(G3は90,000円)/エアコン内部清掃事前預かり(2台):27,000円(G3は3台で40,500円)/鍵交換費:5,000円〜/インターネット回線費:月額1,089円/保証会社加入必須/保証会社初回保証料:月額賃料等の50%〜/月次決済費500円(税別)/保証会社更新料:年額10,000円〜/仲介手数料:成約賃料1か月+税/要火災保険契約 | ||
| 情報修正日時 | 2026年2月26日 | 情報更新予定日 | 2026年4月27日 |
あなたにおすすめの物件


