|
|
|
||||||||||||||||||||
新たなピースに |
||||||||||||||||||||||
|
||||||||||||||||||||||
|
||||||||||||||||||||||
|
||||||||||||||||||||||
|
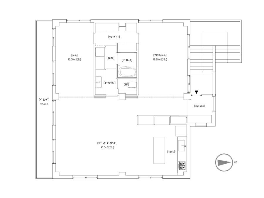
アースカラーのレンガタイルが並ぶファサードが印象的で、美しい建物だと思いました。この建物は元病院として使われていました。現在、1階には地域コミュニティに根付いたカフェが営業しています。 今回募集となるのが2階区画。金沢文庫駅から金沢文庫や海の公園へと続く、人通りのある車通り沿いに建っています。周辺には個人商店も点在しており、この場所にサンドウィッチやおにぎりなどテイクアウトのできるお店や、この空間を活かした店舗が入ることで、この街の新たなピースになってくれたらと思っています。 なお、本物件はあくまで住宅が前提となり、住居兼店舗・住宅兼事務所としての募集となります。暮らしながら新たな事業を始めたい方や、小さな事務所を構えたい方に合いそうです。 階段を上り、アーチ壁をくぐると玄関。2Fと青字で記されたプレートがかわいらしい。間取りは2LDKで、全面改修工事が施されています。建具の一部は、医院から残された棚やレントゲン室の下地を巧みに利用し、躯体には建築時の手書きのメモが残されており、空間のアクセントになっています。 フローリングは無垢材で、壁の一部はDIYに適したベニア板で仕上げられていて、造作を備え付けるなども可能です。 元住人に暮らしのヒントを伺うと、躯体にはボルトのような突起が等間隔に並んでいて、そこにワイヤーをかけてスクリーンを吊るし、バルコニー側の壁には自作の棚を設けてプロジェクターを設置。自宅で映画時間を楽しんでいたとのこと。観葉植物やサンキャッチャーを吊るしてみたり、このアイデアは応用できそう。 各空間をつなぐ扉は引き戸なので収まりがよく、閉めれば壁のように空間を仕切り、開ければ開放的に。室内全体をゆるやかにつながるワンルームのように使うこともできます。 キッチンは壁付けですが、背後に作業台があることで人が自然と集まり、会話が生まれる空間に。作業台は、元々病院で使用していた収納をカトラリー入れとして蘇らせました。コンロは4口、さらに食洗機付きと頼もしい。 さらに、ガス乾燥機や食洗機が備わっていて、日常生活の利用はもちろん、事業用途にも大いに役立ちそう。 バルコニーは南向き。日当たりが良く、窓を開ければ風もよく通ります。敷地内には庭があり、オーナー様が時折ドッグランとして使うようで、そんな様子を眺める日もありそうです。 近隣には、地域の憩いの場である称名寺があります。池に羽を休めに来る鳥を撮影する人や犬の散歩をする人の姿が見られました。海の公園は潮干狩りで有名な海岸。波も穏やかで、浜辺で会話を楽しむ学生やランニングをする人など、どこか落ち着いた時間が流れていました。 ※一部の写真は前回募集時の写真です。 ※住居兼店舗・事務所の場合、賃料は別途消費税かかります。 ※借主は、貸主の書面による事前の承諾を得て、DIY等の工事が可能です。(ただし構造躯体などに関わることは不可)原状回復工事については、都度相談となります。 |
![]() |
|
| 壁の一部はベニア板で仕上げられていて、無骨な梁とコントラストがいい |
|
| 奥行きのあるこの部屋は、店舗や事務所としても |
|
| 壁の一面はレントゲン室の解体で発生した部材を再利用 |
|
| 玄関前のアーチの壁│2Fと青字で記されたプレートがかわいい |
|
|
| >>大きな地図で見る  |
| 賃料 | 23万円 | 専有面積 | 108.35㎡ |
| 敷金 | 2ヶ月 | 礼金 | 1ヶ月 |
| 償却 | なし | 管理費 | なし |
| 所在地 | 横浜市金沢区寺前一丁目 | ||
| 交通 | 京浜急行本線「金沢文庫」駅 徒歩8分 | ||
| 建物構造 | 鉄筋コンクリート造陸屋根2階建 | 所在階 | 2階 |
| 築年 | 1976年 | 取引態様 | 媒介 |
| 設備 | 公営水道/公共下水/都市ガス | ||
| 備考 | ペット可(敷金・償却1ヶ月分積み増し)/定期借家契約(期間:3年/再契約:相談)/募集戸数:1戸/駐車場:近隣空有(月額:16,000円)/駐輪場・バイク置き場:物件前無償利用可/楽器:可(近隣への配慮をお願い致します)/再契約料:新賃料の1ヶ月分/賃料保証会社加入:必須(初回保証料:月額賃料等の50%〜更新料:1年毎に10,000円〜)/事業用途専用としての利用不可/仲介手数料:賃料の1ヶ月分+消費税/住居兼事務所可(賃料は別途消費税かかります)/要火災保険契約 | ||
| 情報修正日時 | 2026年3月14日 | 情報更新予定日 | 2026年3月29日 |
あなたにおすすめの物件


