|
|
|
||||||||||||||||||||
平屋のシェードガーデン計画 |
||||||||||||||||||||||
|
||||||||||||||||||||||
|
||||||||||||||||||||||
|
||||||||||||||||||||||
|
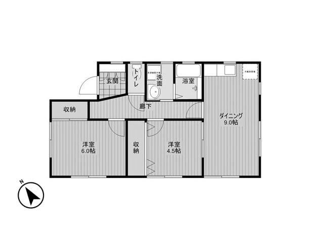
小さな庭付き平屋がありました。庭の日当たりは抜群とは言えませんが、簡単に諦めてしまうには惜しい余白。ガ―デニング好きの友人に聞くと、日陰や半日陰の環境であれば「シェ―ドガ―デン」という楽しみ方があるそうです。 例えば、ギボウシのやわらかい葉、トクサの縦ライン、シダ類のユニークな葉形。日陰に強い植物を大小の鉢でまとめるだけでも、十分に庭の表情はつくれます。中でもヒュ―ケラ(別名ツボサンゴ)は、銅色やワインレッド、ライムグリ―ンなど葉色のバリエ―ションが豊富。この庭に並んだら、きっといい差し色になってくれそうだなと思いました。 前提条件として地植えはNG、土を耕して畑にすることはできません。使えるのはプランターや鉢植えなど。制限はありますが、何ができるか考えてみるとわくわくしてきませんか。 私がここに住むのなら枯山水にチャレンジするのもいいなと思いました。下は防草シ―トの上に白玉砂利を敷き、丸みのある川石と平たい景石を3点ほどリズムよく配置。熊手で波紋を引く日もあれば、さっと整えるくらいのラフさがあってもいいですよね。私は海の漂着物が好きなので拾ってきた貝殻を並べて、流木や大きな浮きをぽんと置いてしまいそうです。 建物は築13年の平屋。間取りは2DKで、カップルや子育てを終えた夫婦2人暮らしにちょうど良さそう。住宅に囲まれている立地ですが、室内に入るとそれほど暗くは感じません。特に6帖洋室は日中しっかりと光が入り、DKや水まわりも窓配置がよく、風と光がうまく抜けています。周囲の住戸と窓同士が重ならない配置のため、視線を気にせず過ごせるのも安心できるポイントです。 徒歩5分ほどの大通りは「藤沢宿」と呼ばれるエリア。天然酵母で作るパン屋や昔ながらの和菓子屋、お茶屋などが点在しています。歴史的な建造物も残っていて、散策するだけでも発見がある魅力ある街です。近くの川沿いはランニングやサイクリングコースになっていて、春は桜が綺麗です。秋には銀杏並木が見頃を迎える公園もあります。白旗神社の催事の日は、活気のある子どもの声や太鼓の音が家まで届くかもしれません。 目を引く派手さはないけれど、日常の中に小さな楽しみがいくつも転がっている。そんな暮らしが、ここには似合っています。 |
![]() |
|
| 建物北西側に庭│この余白の活用を考えるとわくわくしてきます |
|
| 外観はこんな感じ│庭に彩りを加えたら、帰ってくるのも楽しみになりそう |
|
| 洋室6帖│住宅に囲まれた立地ですが、想像以上に明るくて嬉しい |
|
| ダイニングキッチン│隣と重ならない窓配置で、視線を感じずに過ごせそう |
|
|
| >>大きな地図で見る  |
| 賃料 | 15万円 | 専有面積 | 50.15㎡ |
| 敷金 | 2ヶ月 | 礼金 | 1ヶ月 |
| 償却 | なし | 管理費 | なし |
| 所在地 | 藤沢市藤沢一丁目 | ||
| 交通 |
小田急江ノ島線「藤沢本町」駅 徒歩9分 JR東海道線「藤沢」駅 徒歩21分 |
||
| 建物構造 | 木造 1階建て | 所在階 | |
| 築年 | 2013年 | 取引態様 | 媒介 |
| 設備 | 公営水道/公共下水/都市ガス | ||
| 備考 | ペット不可/駐車場:有(1台分無料)/駐輪場:有/賃貸保証会社:加入必須(初回保証委託料:月額賃料等の50%)/更新料1年毎:年額10,000円/鍵交換代等:52,000円~/普通借家契約(期間:2年/更新料:新賃料の1ヶ月分)/仲介手数料:賃料の1ヶ月分+消費税/要火災保険契約 | ||
| 情報修正日時 | 2026年1月30日 | 情報更新予定日 | 2026年2月13日 |
あなたにおすすめの物件


