![]() |
![]() |
![]() |
||||||||||||||||||
木の色付きとともに暮らす |
||||||||||||||||||||
|
||||||||||||||||||||
|
||||||||||||||||||||
|
||||||||||||||||||||
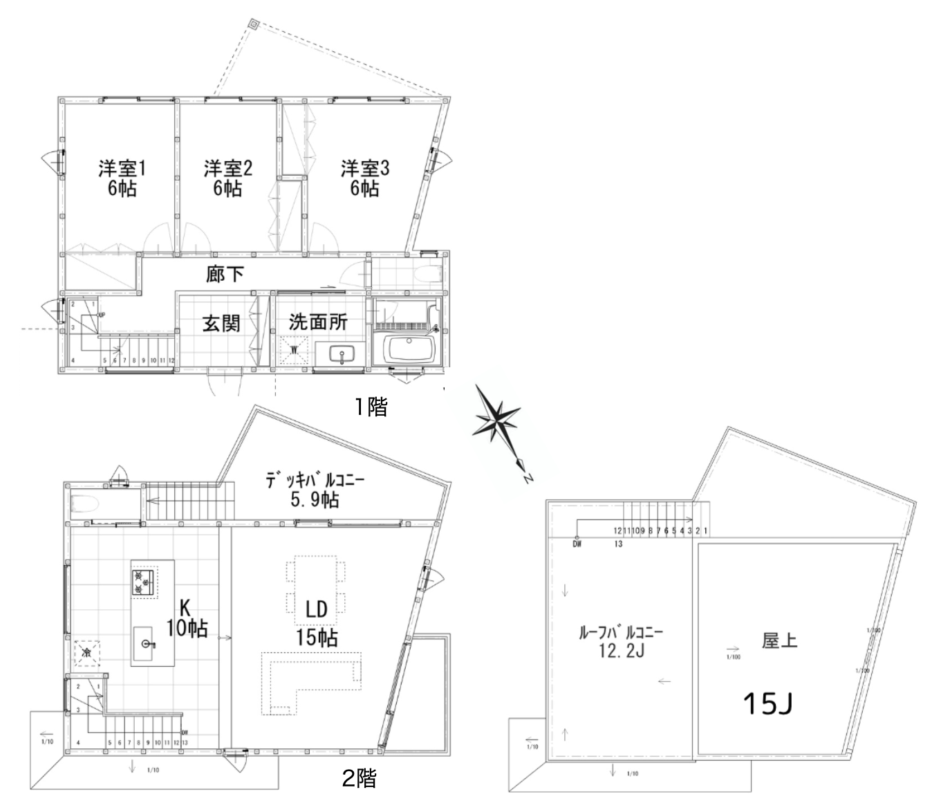
足場が掛かっていたときから気になっていた家。真新しい無垢の杉をまとった板張りの外観。やっぱりこういう佇まいが葉山には一番似合うと思うのです。 建てたばかりの頃は、杉板の外壁は黄色味が強く、周囲の中でひときわ目立ちます。 けれども年数を重ねるごとに色は落ち着き、やがて周囲の自然に溶け込んでいく。 「目立つ」から「馴染む」へ。その変化こそが、この家の魅力です。 建物は南西向き。御用邸の先に見える海を正面に、左右には山々が連なる。ただの「海の眺め」ではなく、季節ごとに表情を変える景色。葉山ならではの奥行きのある風景がここにはあります。 建物は約31坪の広さ。2階に設けられた25帖のLDKは、この眺望を最大限に生かした空間です。キッチンは約10帖と広々。リビングダイニングは段差をつけ、スキップフロアのように視線が抜けるつくりにしています。 窓辺に腰を下ろせば、料理をしていても、ソファでくつろいでいても、自然が常に背景になります。外階段を登ると、約27畳の屋上スペースが広がります。逗子湾方面と一色海岸方面、ふたつの海を見渡す特等席。 ここで朝のコーヒーを飲むのもよし、休日に仲間と集まって食事を楽しむのもよし。 夕暮れ時には、風と一緒に海の気配を感じながら一日の終わりを過ごす。 眺望を邪魔する建物はなく、未来に変わらない空の広さが保証されているようです。 1階は約6帖の部屋が3つ、水まわりをまとめた機能的なレイアウト。ワークスペースにするもよし、来客用の寝室にするもよし。暮らしの形に合わせて、自由にアレンジできる余白があります。 週末、屋上で風を浴びながら本を開く。リビングの大きな窓を開け放ち、潮の香りを感じながらゆるやかに過ごす。1階の部屋を趣味のアトリエにして、海帰りにそのまま創作に没頭する。 ここでの暮らしは自然のリズムと一緒に呼吸するようなもの。時間が経つほどに外壁の木が色づき、家もまたこの土地の風景の一部になっていく。葉山という土地とともに歳を重ね、時間をかけて完成していく。そんな住まい方が、この家にはよく似合います。 この家は現在、建築の最終段階にあります。設備が整い養生が外れると、その印象はきっと大きく変わるはず。写真や言葉では伝えきれない質感や眺めを、ぜひ現地で体感していただきたい住まいです。 |
![]() |
![]() |
リビングは小上がりになっており約15帖 |
![]() |
南の窓からの眺望 |
![]() |
キッチンのベースが付きました。背面はタイル貼りの予定 |
![]() |
デッキ下。外構はこれからです。 |
|
>>大きな地図で見る  |
価格 | 8,480万円(税込) | 建物面積 | 102.68㎡ |
管理費 | なし | 修繕積立金 | なし |
所在地 | 葉山町一色 | ||
交通 | JR横須賀線「逗子」駅 バス14分 「葉山町役場」バス停 徒歩5分 | ||
建物構造 | 木造 2階建て | 所在階 | |
築年 | 2025年 | 土地権利 | 所有権 |
敷地面積 | 155.39㎡ | 都市計画 | 市街化区域 |
用途地域 | 第一種低層住居専用地域 | 建蔽率/容積率 | 40%/80% |
その他費用 | 取引態様 | 媒介 | |
設備 | 公営水道/公共下水/個別プロパンガス | ||
備考 | 地目:宅地/私道負担:有(約10.3㎡)/現況:空室/引渡時期:令和7年10末頃/第4種風致地区/駐車場スペース有り | ||
情報修正日時 | 2025年10月3日 | 情報更新予定日 | 2025年10月20日 |
