|
|
|
||||||||||||||||||
空の一色暮らし |
||||||||||||||||||||
|
||||||||||||||||||||
|
||||||||||||||||||||
|
||||||||||||||||||||
|
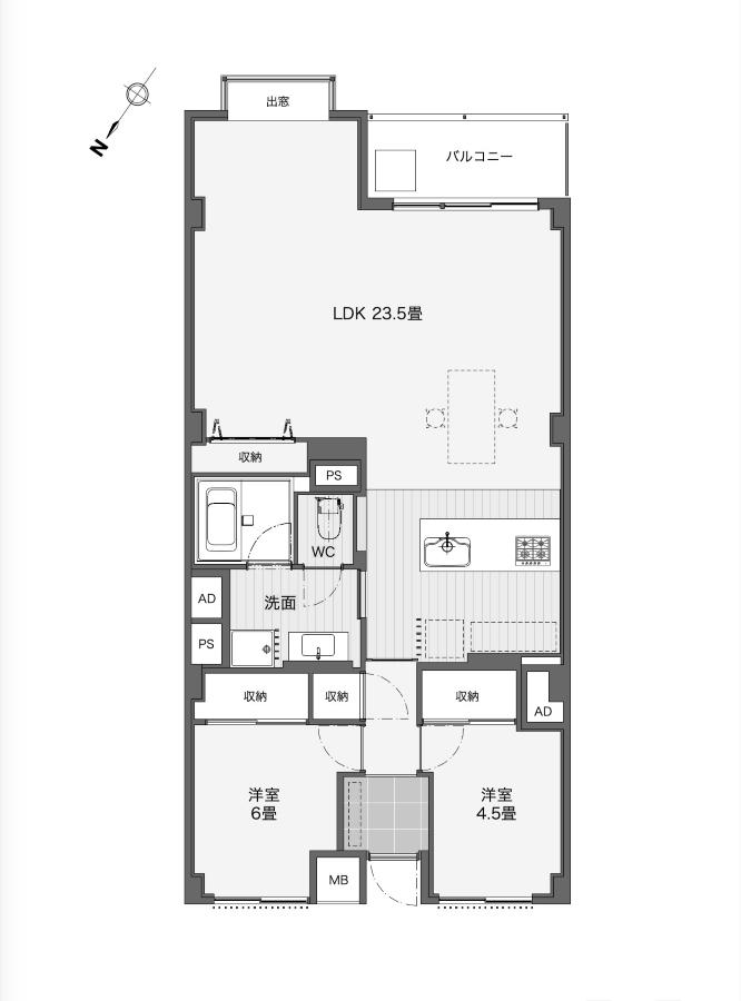
葉山大道沿いで、道路から見上げると敷地内の植栽がわさわさと茂り、建物の背景にも山の緑が。以前にも何度かご紹介しているレトロマンションです。 今回は最上階の5階の部屋。バルコニーからの空の見え方が気持ちいいのは言わずもがな。リビング・ダイニングにいる時間がついつい長くなってしまいそうです。このマンションの特徴でもある出窓部分も日当たりがよく、ここにグリーンを飾ったり、ソファを置いてぼーっと遠くを見たり、朝はストレッチをしたり…リラックスする場所になるといいなと思ってしまいます。 間取は洋室がややコンパクトな2LDK。夫婦二人か、お子さん含めて3人くらいの暮らしが描きやすそうです。家にいるときは多くの時間をLDKで思い思いに過ごして。寝るときだけ個室に。そんな部屋の使い方になりそうです。一人暮らしなら、LDKの一部をパーテーションなどで区切って、ベッドスペースにするのも気持ちがいいかもしれません。その場合、各洋室は収納とリモートワーク部屋というのもアリだと思います。 水まわりの設備は更新済で、それぞれちょうどいいサイズ感です。床や壁の仕上げも、シンプルながら海に近いまちに似合う素材感で仕上がっていて、自分でマンションを買ってリノベがしてみたかったという方も「あ、これだったらそのまま買ってしまおうか」と思えるかもしれません。 一点注意したいのが、マンションの駐車場に空きがないこと。葉山に住むなら車は必須では?とも思いましたが、スーパーやコンビニ、ちょっとした飲食店もマンションの近くにあり、また、バス便を駆使すると逗子方面や衣笠方面にも出ることができるので、しばらく自家用車は持たなくてもいいという選択肢もあり得そうです。 一色海岸までは徒歩11分ほど。葉山らしい穏やかな朝に、海までのお散歩、海でのレジャーも楽しみになりそうです。 ペットの飼育が不可というとこと、大通り沿いのためやや車などの音がするのでご注意を。
|
![]() |
|
| 窓は大き目。出窓も素敵なマンションです |
|
| 内装はシンプルに。木の素材感と、サイザル麻のカーペット敷き |
|
| 出窓がある部分。いい籠り感があります |
|
| LDK |
|
|
| >>大きな地図で見る  |
| 価格 | 4,300万円(税込) | 専有面積 | 78.92㎡ |
| 管理費 | 14,560円 | 修繕積立金 | 13,533円 |
| 所在地 | 三浦郡葉山町一色 | ||
| 交通 | JR横須賀線「逗子」駅 バス18分 「葉山大道」バス停 徒歩3分 | ||
| 建物構造 | 鉄筋コンクリート造 5階建て | 所在階 | 5階 |
| 築年 | 1974年 | 土地権利 | 所有権 |
| 面積 | 都市計画 | 市街化区域 | |
| 用途地域 | 第一種住居地域 | 建蔽率/容積率 | |
| その他費用 | 自治会費:250円 | 取引態様 | 媒介 |
| 設備 | 都市ガス/公営水道/公共下水 | ||
| 備考 | ペット不可/施工会社:株式会社長谷川工務店/管理会社:株式会社長谷川コミュニティー/管理形態:全部委託(日勤)/総戸数:117戸/バルコニー面積:5.16㎡/現況:空室/引渡時期:相談/駐車場:敷地内空き無/リノベーション完了:2025年12月/第一種高度地区/第22条区域/景観法/第4種風致地区/土砂災害警戒区域および一部土砂災害特別区域内 | ||
| 情報修正日時 | 2025年12月8日 | 情報更新予定日 | 2025年12月25日 |
あなたにおすすめの物件


