|
|
|
||||||||||||||||||
帰還するガレージ |
||||||||||||||||||||
|
||||||||||||||||||||
|
||||||||||||||||||||
|
||||||||||||||||||||
|
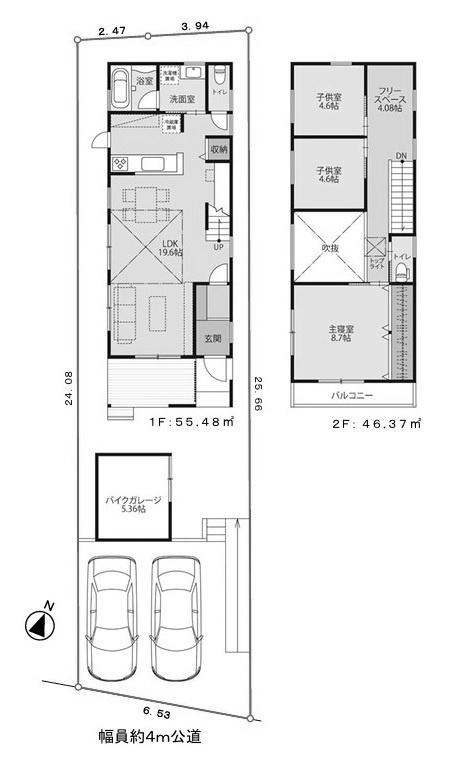
エンジンの余韻を残したまま、ひとつひとつが静かに収まっていく。駐車場には車が2台、ガレージには大型バイクが3台。さらに自転車まですっと入り込む余白まである。今はまだ何も置かれていない空間に、自分の愛車を想像で駐車してみてください。 例えば、背の高いSUVを1台。壁際にはロードバイクや、海まで流せるクルーザータイプの自転車。使い込まれた道具や、まだ新しいギアが少しずつ増えていく。全部を満たす必要はなくて、1台分は来客用に残してもいいし、ガレージに少し余裕を持たせて作業するもよし。 建物は青の外観で、青空というよりはやや深みのある海のような色味。横に貼られた鋼板の重なりが静寂な波のようにも見えてきます。建物を正面から見るとややコンパクトな印象ですが、室内に入るとLDKには吹き抜けがあり、ぱっと明るく開放感があります。空模様を切り取る天窓がお気に入り。 玄関ポーチや室内の天井には、無垢の杉板が張られていて、足を踏み入れると、ふわりと木の気配が感じられます。外観のクールな青と対照的に、内側にはやわらかい温度が流れていて、そのギャップが魅力です。 壁は調湿性があるといわれている珪藻土と呼ばれる素材(海や湖にいた珪藻というプランクトンの殻が堆積してできた土)で左官職人によって塗られています。鼻が効く方であれば、その自然由来のわずかな匂いに気づくかもしれません。壁紙のように均一な仕上げとは違い、職人の手仕事ならではの味わいがあります。 家族の時間が自然と生まれる導線も、この住まいの魅力のひとつ。LDKと玄関を隔てる扉がないため、玄関から2階へ上がるには必ず1階のLDKを通るつくりになっています(写真6枚目)。例えば子どもが学校から帰ってきたとき、そのまま自室へ向かうのではなく、自然と「ただいま」が交わされるような動線です。親もその様子をさりげなく感じ取れる配置になっています。 2階には子ども部屋として使えるコンパクトな空間が2部屋。その手前には約4帖ほどのフリースペースが設けられていて、遊び場や勉強スペースなど、暮らし方によって柔軟に使えそう。私もこの場所が気に入っていて、例えば本を読んだり、少し作業をしたり、気分を変えたいときにふらっと上がって過ごすような、そんな使い方が浮かびました。 海岸まで自転車に乗れば10分ほど。バイクに乗って134号線まで出れば、海沿いをなぞるように江の島や鎌倉方面へ。休日は、家族でドライブしたり、少し時間ができたときには夫婦でツーリングに出かけるのもいいかもしれません。 子どもが成長したとき、このガレージに残る親のこだわりを、どのように受け取っていくのか。その先の時間にも、まだ余白があります。 |
![]() |
|
| 1階から吹き抜けを見上げてみる。空を切り取った一枚の窓がすてき |
|
| 1階LDK19.6帖│吹き抜けのおかげで、開放感があって明るい |
|
| 2階から見た吹き抜け│天井が無垢の杉板張りで、開放感がより感じられます |
|
| ガレージ5.36帖│スロープが付いていて、大型バイク3台分のスペースがあります |
|
|
| >>大きな地図で見る  |
| 価格 | 8,350万円(税込) | 建物面積 | 101.85㎡ |
| 管理費 | なし | 修繕積立金 | なし |
| 所在地 | 藤沢市辻堂五丁目 | ||
| 交通 | JR東海道線「辻堂」駅 徒歩16分 | ||
| 建物構造 | 木造 2階建て | 所在階 | |
| 築年 | 2026年 | 土地権利 | 所有権 |
| 敷地面積 | 159.41㎡ | 都市計画 | 市街化区域 |
| 用途地域 | 第一種低層住居専用地域 | 建蔽率/容積率 | 50%/80% |
| その他費用 | 取引態様 | 媒介 | |
| 設備 | 公共下水/公営水道/都市ガス | ||
| 備考 | 地目:宅地/現況:空室/引渡時期:相談/建築基準法第22条区域/景観法/接道:南側約4m公道に6.53m接道/ガレージ面積:8.69㎡/バイク置場あり/駐車場あり | ||
| 情報修正日時 | 2026年4月26日 | 情報更新予定日 | 2026年5月10日 |
あなたにおすすめの物件

