|
|
|
||||||||||||||||||
服飾愛好家の抜け殻 |
||||||||||||||||||||
|
||||||||||||||||||||
|
||||||||||||||||||||
|
||||||||||||||||||||
|
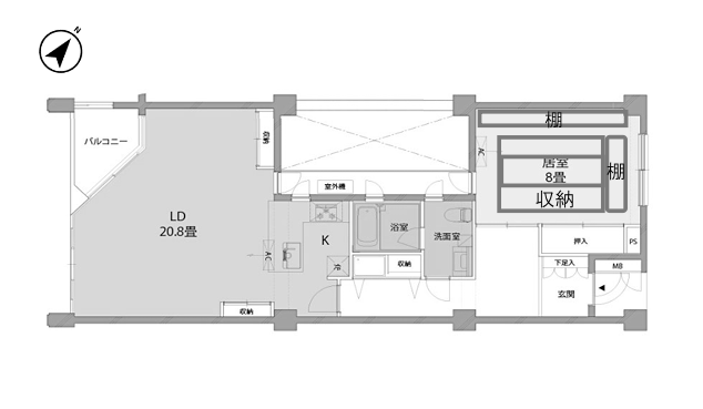
私みたいに洋服が好きで、たくさん持っている方がいると嬉しいんだけど。オーナーが最初に案内してくれたのは、北側洋室8帖をまるごと衣装部屋にした空間でした。しかも、これをお一人で使っていたと聞いて、思わず声が出ます。 中央には上下2段のポール付き吊るし収納。壁一面には高さ調整のできる造作棚。さらに既存の押し入れまで総動員。寝室を設けず、8帖すべてを衣装部屋にする。その決断から伝わってくるのは、合理性ではなく「好き」を軸にした暮らし方。その姿勢が、正直うらやましく思います。 現在はオーナーが住み替えられて、室内はモノのない真っ白な抜け殻のような状態です。でも不思議と、どんな色も、どんな柄も、和物も、男くさいアメリカンヴィンテージも、全部まとめて受け止めてくれそうな器の大きさだけは、ちゃんと残っています。 玄関前に設けられた三帖ほどの余白は、単なる通路以上の意味を持っていたのではないかと想像します。そこに全身が映る大きな鏡を置き、外出前に今日のコーディネートを確かめる。歩いてみたり、回ってみたり。衣服のしわ、靴と装いのバランス、そしてふと意識する背筋の伸び具合。身だしなみを整えるだけでなく、内面を整える場所でもあったのかなと、そんなふうに思えます。 LDKも白を基調とした空間。大きな窓の向こうには青空が見えて、南向きのため日当たりも良さそう。同じマンション内には前方に建物が重なる区画もある中で、抜け感が確保されている点は嬉しいポイントです。 洋室が衣装部屋だったことを思うと、オーナーはどこで寝ていたのだろうと気になっていましたが、陽が入るLDKで過ごしていたそう。自然光で目覚める朝は気持ちが良さそうですね。バルコニーに出ると、室内からは見えなかった小坪漁港側の海がちらり。波音は届きませんが、海風を受けながらきらきらと光る水面を眺めることができます。 ここは逗子マリーナ8号棟の一室。空から見るとアルファベットのJの形をした、白い外観と曲線が特徴的な建物です。当区画は曲線部分ではありませんが、共有部を歩くとカーブを描く建築の美しさやヤシの木が並ぶ景色に、キャリーケースを転がしながらリゾートホテルに泊まりに来たような感覚になります。 敷地内駐車場、駐輪場に現在空きがなく、近隣に時間貸駐車場はありますが、月極は確保が難しいエリアです。8号棟前のバス停から鎌倉駅へのバス便は比較的本数があります。折りたたみや軽量の自転車であれば室内保管にして、休日は海沿いをサイクリングしたり、気になる店を開拓しに出かけるのもいいですね。 徒歩圏内にスーパーやコンビニはありませんが、精肉店やパン屋、営業日が限られた人気のカフェなどがあります。小坪漁港で水揚げされた海の幸を味わえる定食屋が点在しているのは、漁港のそばならではです。 最後に、室内の現況を気に入った方であれば、洋室の造作棚をフル活用したり、あえて洋室を寝室以外の用途で使うというオーナーの思い切りを引き継ぐのもありかなと思います。そんな方が現れてくれたら嬉しいです。残念ながら使いこなせなさそうという方であれば、造作棚は売主側で撤去します。自分が落ち着く空間にリノベーションしたいというご要望も相談可能です。 |
![]() |
|
| バルコニーからの眺め│小坪漁港側の海がちらりと見えて嬉しい |
|
| LDK20.8帖│窓の向こうには建物の間から青空が見えます |
|
| 北側洋室8帖│上下2段の吊るし収納や棚板の多さから、収納力の高さがひと目で伝わります |
|
| 室内から見た眺め│道路や駐車場があることで、隣の建物との距離が取れています |
|
|
| >>大きな地図で見る  |
| 価格 | 5,500万円 | 専有面積 | 82.23㎡ |
| 管理費 | 28,800円 | 修繕積立金 | 6,940円 |
| 所在地 | 逗子市小坪五丁目 | ||
| 交通 |
JR横須賀線「鎌倉」駅 バス12分 「小坪」バス停 徒歩5分 JR横須賀線「逗子」駅 バス13分 「リビエラ逗子マリーナ」バス停 徒歩1分 |
||
| 建物構造 | 鉄筋コンクリート造 地下1階付き 5階建て | 所在階 | 1階 |
| 築年 | 1989年 | 土地権利 | 所有権 |
| 面積 | 都市計画 | 市街化区域 | |
| 用途地域 | 第二種住居地域 | 建蔽率/容積率 | 60%/200% |
| その他費用 | 取引態様 | 媒介 | |
| 設備 | 公営水道/公共下水/都市ガス | ||
| 備考 | ペット可(飼育細則あり)/施工会社:竹中工務店/管理会社:株式会社リビエラリゾート/管理形態:全部委託(日勤)/総戸数:121戸/バルコニー面積:4.5㎡/現況:空室/引渡時期:相談/駐車場:空き無/駐輪場:空き無※駐車場、駐輪場は全て1月15日現在の状況です。/契約不適合責任免責、現況有姿/※北側洋室8帖の造作棚は、要望があれば売主側で撤去予定 | ||
| 情報修正日時 | 2026年1月23日 | 情報更新予定日 | 2026年2月6日 |
あなたにおすすめの物件


