|
|
|||||||||||||||||||
まるっと江の島 |
||||||||||||||||||||
|
||||||||||||||||||||
|
||||||||||||||||||||
|
||||||||||||||||||||
|
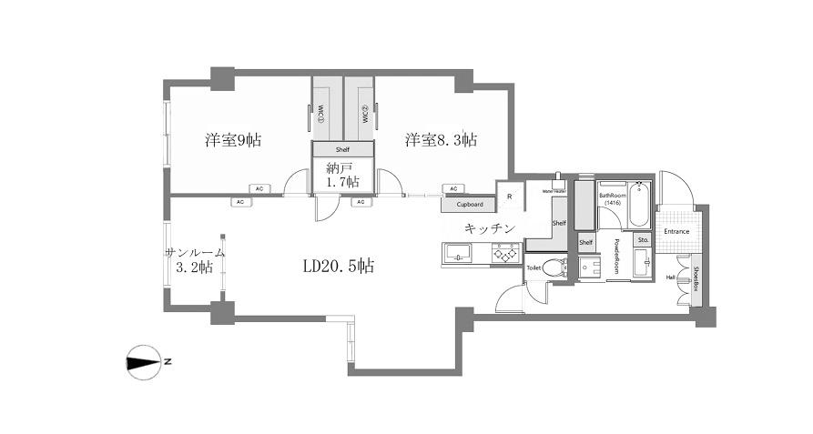
【価格変更しました】 まるごと江の島を眺められる部屋がありました。景色の中央に江の島が見え、青い空と海に包まれた気持ちのいい眺めです。マンションの高層階にあり視界を遮る建物がないので、開放的な眺望を日常の中で味わえます。 そして、建物の前には新江ノ島水族館があります。イルカのショーが始まれば、イルカのジャンプが見えるのでは?と想像してしまうほどの高さですが、実際は見えません。ただ、水族館やライフセーバーのアナウンスが耳を澄ませると聞こえてきます。景色だけではなく、この場所ならではのサウンドが楽しめるようです。 外観の魅力にも触れておきましょう。134号線に対して45度斜めに並ぶ壁面の構造がかっこいい。白い外壁が青空に映え、海沿いの建物であることを誇らしく思っているように見えます。建物は築50年を超えるヴィンテージマンション。エントランスや階段、外の洗い場などの共有部には築年数に応じたレトロ感があり、夏休みに海沿いのホテルに泊まりに来たような懐かしさを感じました。 一方で、室内は令和7年8月にフルリノベーションされています。間取りは2LDK。20.5帖のLDの他に、9帖と8.3帖の洋室があります。2人暮らしであれば余裕のある広さに思えます。 私がこの家に住むのなら、LDには高さを抑えた家具を選び、窓の先まで視線が抜ける心地良さを残したい。窓辺には作業スペースを作り、植物を並べて、コーヒーを飲みながら読書ができたら嬉しいな。それから水族館の年間パスポートを買って、週末は海の生き物に癒される時間を過ごしたいです。 アクティブなライフスタイルも大切にしたければ、近隣にあるサーフィン教室に通ってみたり、ランニングに励んで湘南国際マラソンにチャレンジしてみるのはどうでしょう。砂浜を歩くだけでも足腰や体幹の筋肉が維持できて、波音を聞いてリフレッシュできると思います。 窓の向こうに広がる景色と同じように、この住まいには暮らしの視野を広げてくれるような力があるように感じます。家に籠るだけでなく、自然や街に誘い出してくれる。その行き来の中で日々の時間が豊かに積み重なっていくのだと思います。 最後に気になる点を1つ。建物は134号線に面しており、一定の交通量があります。上層階のためか、私はそれほど走行音は気になりませんでした。実際の音の感じ方は現地でご確認ください。 |
![]() |
|
| 青空と相性がいい白い壁 |
|
| 南側の洋室:9帖│窓辺に机と椅子を置けば、景色を眺めながら仕事や趣味が捗る空間になりそう。 |
|
| サンルームの先に江の島シーキャンドルがちらり。 |
|
| リビングダイニング:20.5帖│奥行きがあり、窓の向こうへ視線が抜けます。 |
|
|
| >>大きな地図で見る  |
| 価格 | 7,880万円(税込) | 専有面積 | 101.14㎡ |
| 管理費 | 14,400円 | 修繕積立金 | 13,800円 |
| 所在地 | 藤沢市片瀬海岸二丁目 | ||
| 交通 |
小田急江ノ島線「片瀬江ノ島」駅 徒歩6分 江ノ島電鉄線「湘南海岸公園」駅 徒歩9分 |
||
| 建物構造 | 鉄骨鉄筋コンクリート造 8階建て | 所在階 | 7階 |
| 築年 | 1970年 | 土地権利 | 所有権 |
| 面積 | 都市計画 | 市街化区域 | |
| 用途地域 | 商業地域 | 建蔽率/容積率 | |
| その他費用 | CATV使用料 (月額):525円 | 取引態様 | 媒介 |
| 設備 | 公営水道/公共下水/都市ガス | ||
| 備考 | ペット可(使用細則有)/分譲会社:東映不動産株式会社/施工会社:野村工事株式会社、日本電設株式会社、芝工業株式会社/管理会社:株式会社東急コミュニティー/管理形態:全部委託管理/総戸数:41戸/現況:空室/引渡時期:相談/駐車場:空き有(月額8,000円から15,000円 ※車種制限要確認)/バイク置き場:空き有(月額3,000円)/駐輪場:空き有(無料)※駐車場、駐輪場は全て9月14日現在の状況です。/事務所使用・民泊等不可(住居専用)/風致地区 | ||
| 情報修正日時 | 2025年9月19日 | 情報更新予定日 | 2026年1月24日 |
あなたにおすすめの物件


