|
|
|
||||||||||||||||||||
BACKSTREET PARK |
||||||||||||||||||||||
|
||||||||||||||||||||||
|
||||||||||||||||||||||
|
||||||||||||||||||||||
|
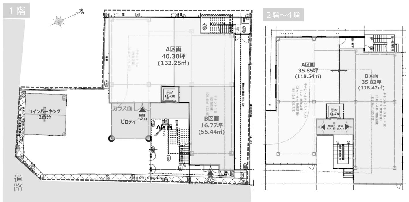
鎌倉の内蔵を司ると思っている、小町通りと若宮大路の間にある飲食店やギャラリーがひしめく街、通称:裏小町。地元感あふれる裏通りとして成熟してきたこのエリアに、新たな光が差し込んできたのです。 裏小町の中心的なポジションの角地。そこに公園のような共用部分をもったビルが建ったのです。簡単に公園といいましたが、これがこの街に必要な価値ある要素だと私は思うのです。 私はベンチが大好きです。その理由をここで話しはじめては物件紹介にならなくなってしまうので割愛しますが、ベンチは街を変える装置です。少しだけ腰を下ろして地図を広げる、買ったばかりアイテムの開封の儀を行う、カバンの奥底に入り込んでいるものを取り出す。そんな時にふと声をかけたり、かけられたり。そんな出会いのきっかけになったり、夜になれば飲食店選びの会議の場所になったり。 つまり人だまりができる訳です。それが通りに文化を生み出す第一歩になると私は思っています。そのためには小さな公園のような場所にベンチがある空間は、それなりにカッコイイことも大切です。 考えてみてください。例えば、キャットストリートや昔の吉祥寺や代官山、最近では線路沿いの下北沢など、ちょっとした公園のような場所にベンチが置かれ、おしゃれさん達が集まって雰囲気のある風景が作り出されています。 そうした目線で、この物件の共用部を見てみましょう。建物に向かって裏小町特有の細く、くねくねとした道を模したようなジグザグの舗装。そこにアクセントをつけた芝生(今は冬なのでうまく見えませんが!)、そこに沿って至ってシンプルなL字のコンクリート製のベンチがふたつ。途中には建物のテナントの店名看板が設置できるサイン群があり、植栽が通りを囲む。いいバランスです。 建物は日本的な幾何学模様を演出したファサードや高級感のあるエレベーターホールが印象的。すでに入居が決まっているテナントは海外から日本進出されるお店や施設が多く、文化度の高いインバウンドの方が集まり出しそうな予感がしています。 現在募集中の区画は飲食店ができる区画やそうでない区画。路面店や空中店舗で公園を見下ろせる区画など、様々な特徴のある区画がありますので、用途や目的に合わせてご検討ください。 このエリアが変わっていく風景を作り出す場に参加できるチャンスかもしれません。10年後にはこのエリアの昔と今を語れる建物になってくれることを期待しています。 ◆現在の募集区画 区画/面積/賃料/共益費/飲食の可否 1FB/ 55.44㎡/608,751円/36,894円/不可 2FB/118.42㎡/1,103,256円/78,804円/可 3FA/118.54㎡/828,135円/78,870円/不可 3FB/118.42㎡/827,442円/78,804円/不可 |
![]() |
|
| 3FA区画から公園部分を見下ろす |
|
| 共用部分|程よい公園感がいい |
|
| 左:外壁のテ幾何学模様|右:エレベーターホールのサイン看板 |
|
| ベンチ|ここから文化が生まれるんだと思っています |
|
|
| 賃料 | 60万8,751~110万3,256円(税込) | 専有面積 | 55.44㎡~118.54㎡ |
| 保証金 | 6ヶ月 (税込賃料) | 礼金 | 2ヶ月 |
| 償却 | なし | 管理費 | 36,894円~78,870円(税込) |
| 所在地 | 鎌倉市小町二丁目 | ||
| 交通 | JR横須賀線、湘南新宿ライン「鎌倉」駅 徒歩4分 | ||
| 建物構造 | 鉄骨造 5階建て | 所在階 | |
| 築年 | 取引態様 | 媒介 | |
| 設備 | 公営水道/公共下水/都市ガス/看板取付スペースあり/換気口/排煙設備/排水設備/動力あり | ||
| 備考 | 定期借家契約(期間:相談)/賃貸保証利用必須(賃料1ヶ月(業態や会社希望により異なる))/サイン規定有/仲介手数料:賃料1ヶ月分+消費税/飲食店可(2FB区画)/要火災保険契約 | ||
| 情報修正日時 | 2026年1月31日 | 情報更新予定日 | 2026年2月14日 |
あなたにおすすめの物件


