|
|
|
||||||||||||||||||||
老舗のニュー・プレイヤー |
||||||||||||||||||||||
|
||||||||||||||||||||||
|
||||||||||||||||||||||
|
||||||||||||||||||||||
|
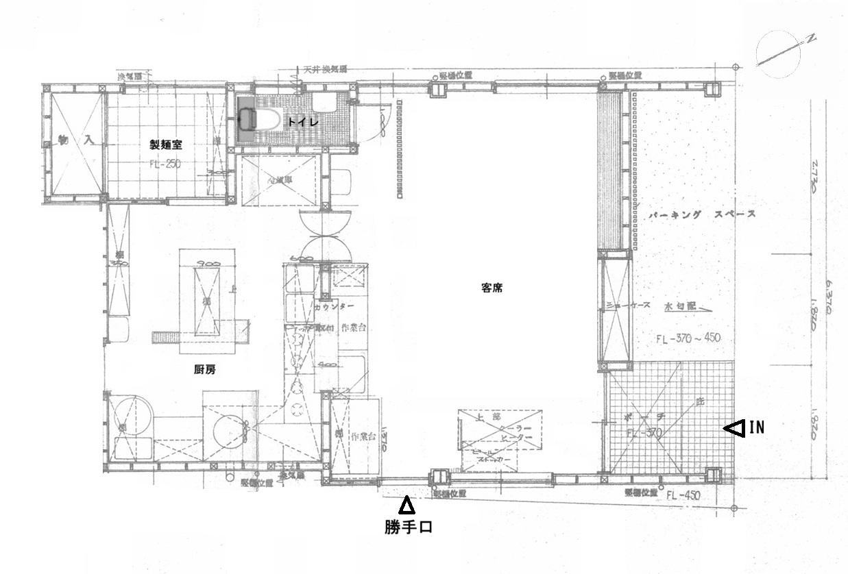
いかにも和風なこのファサードを前にして、ここからどう手を加えようかと想像を膨らませます。この店構えを活かして和モダンを目指すか、もしくは古建具に交換してより日本らしく整えてみるか。いやいや、ミックススタイルを目指すか。店前からポテンシャルの高さを感じてしまいます。 大町四ツ角の交差点より少し手前の老舗跡を引き継いで。この舞台に立ってくれるニュー・プレイヤーを募集します。 大町と言えば地元のひとにも、全国のソーイング愛好家にも大人気の鎌倉スワニーを始め、新旧折々の店舗が軒を連ねますが、小町通りのような派手さはいい意味でなくて。落ち着いて散策する人と、目的を持って来店している観光客の方、地元の人たちのためのお商売を続けているお店が多い印象を持ちます。 そんな大町の仲間に入るなら、この店構えを活かしてどんなお店をつくっていこう。ドキドキしながらイメージしてみます。 例えば、飲食店で、店先に焼き菓子やオリジナルグッツ等も並ぶお店。ちょっとした手土産も買えるお店というのが、地元の方にもうけそうです。もしくは、和の面持ちを活かして、アンティークの着物屋さんと、着付けも一緒にできるお店。大町から観光をスタートして、帰ってくるというのは、なんだか通な感じがしませんか。お抹茶体験や、陶芸体験等の体験型の店舗も楽しいかも…。 もう少し地元の方向けのお店をと考えると、お弁当やお惣菜のテイクアウトができるお店なども重宝しそうです。ちょっといい食材や調味料、こだわりの地場野菜が買える小さなコンビニみたいな業種も、個人的にはあったらいいなと思います。ワンちゃんのためのごはん、おやつとグッツのお店で、軒下のベンチでカフェができるとか。そういう散歩ついでのお客さんを取り込むのもいいかも。 用途地域的にはやれることが多いイメージのこの物件。営業時間については20時までと制限しますので、大町の夜の静けさを考えてご配慮ください。なので、バーや居酒屋さんというのは難しいかなと思います。お酒を飲んでいただくとしても、軽く一杯くらいのお店が場所的にもしっくりくるはずです。 いまある厨房設備は、基本的には残置しお譲りする方針ですので、飲食店をやりたいという方には好都合では。物販の店舗として、厨房ごと解体したいという場合は要相談です(基本的には、全て現況でお引き渡しとします)。鉄骨造の構造なので、木造よりは内装のレイアウトの自由度はあるかと。 ひとつの老舗が幕を閉じるのは少しだけ寂しいのですが、新しくこの場所に来てくれる方には、ぜひこの舞台で自分らしく、地域に愛されるお店を作ってもらいたい。そんな気持ちでいっぱいなのです。
|
![]() |
|
| 歩道からさらに後退しているため、軽自動車や自転車も駐輪可能 |
|
| 店内の様子。和モダンに仕上げるか、一新するか |
|
| 店内の様子 |
|
| 店内の様子。窓が多いのもいいです |
|
|
| >>大きな地図で見る  |
| 賃料 | 27万5,000円(税込) | 専有面積 | 53.08㎡ |
| 敷金 | 6ヶ月 | 礼金 | 1ヶ月 |
| 償却 | なし | 管理費 | 14,000円(税込) |
| 所在地 | 鎌倉市大町二丁目 | ||
| 交通 | JR横須賀線「鎌倉」駅 徒歩8分 | ||
| 建物構造 | 鉄骨造 3階建て | 所在階 | 1階 |
| 築年 | 1980年 | 取引態様 | 媒介 |
| 設備 | 都市ガス/電気・動力/公営水道/公共下水 | ||
| 備考 | 定期借家契約(期間:6年間)/駐車スペース有(ただし軽自動車のみ):無償/駐輪スペース有:無償/専有面積は概算です/飲食店可(ただし出店可能業種制限有)/その他店舗・事務所等可/敷金は業種により応相談/営業時間20時まで/用途地域:近隣商業地域/水道・光熱費(ガス、電気の使用)は固定費とし月額33,000円(税込み)/動力引き込み有/室内残置物有・現況有姿にて引き渡し/室内造作:応相談/賃貸保証会社:加入要(初回保証委託料:賃料等月額負担の100%~・1年毎に更新料10,000円~)/仲介手数料:賃料1ヶ月分+消費税/要火災保険契約 | ||
| 情報修正日時 | 2026年2月21日 | 情報更新予定日 | 2026年3月7日 |
あなたにおすすめの物件


