|
|
|
||||||||||||||||||
さざなみのヘリンボーン |
||||||||||||||||||||
|
||||||||||||||||||||
|
||||||||||||||||||||
|
||||||||||||||||||||
|
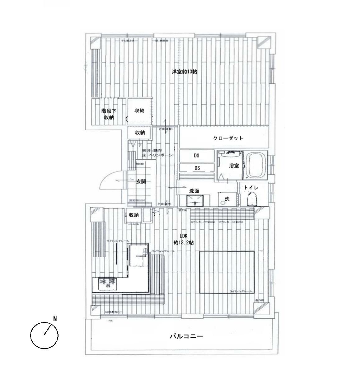
ふわりと温かく春の気配を感じる部屋でした。足元を見ると、ヘリンボーン貼りの床。素足にも気持ちいい素材感はこの部屋のリラックスした雰囲気の要でしょう。聞けば、玄関から室内に入る際に、ヘリンボーンの模様が波打ち際のように見える方向に、とオーナーがリクエストした貼り方なのだそうで、部屋づくりに対するこだわりを感じました。 現オーナーが取得した約9年前に、スケルトンからリノベーションしたこだわりの室内。早速見ていきたいと思います。 まずはリビングから。このマンションでは珍しく、角部屋のファミリータイプの部屋ということで2面採光のため自然光の入り方が気持ちいいのが特徴です。バルコニー側の窓の外には青空が広がり、小さく江ノ島のシーキャンドルが見えます。これも、マンション全体でもこの端の区画だけの特権のようです。 リビングの床は無垢のホワイトオークで美しいヘリンボーン貼り。実は昨年新しく貼り直しをしており、ここから育てていく楽しみがついてくるのも嬉しいポイントでしょう。キッチンは造作で、木とタイルが可愛らしいもの。シンクはわざわざアメリカ製のものセレクトしたそうです。食洗器も取り付けるなど、機能性と見た目の素敵さを両立しています。キッチンに立ったときに窓の外が見えるようにと、パネルも透明にしているところは気が利いているなと感心しました。 そして、キッチンにはL字型にカウンターを設置しています。これはオーナーがわざわざ岐阜に行って購入したというケヤキの一枚板。良質な木材は岐阜に集まると聞いて足を運んだそう。横並びでカウンターで過ごす時間もお気に入りだったそうです。 北側は細かく部屋を分けずに約13帖の1部屋としています。リノベーションの際に北側の部屋には隠ぺい配管でエアコンを設置しているので、快適に過ごせると思います。こういう心配りも、にくいです。居室と廊下の間の見切り材としてタイル貼りを採用しているのも個性的で、キラリと光る面白さを感じます。 浴室や洗面も家族で住むにも充分な設備。トイレの中に給湯器が設置されているのは少し驚くと思いますが、トイレの窓から直接排気することで、追い炊き機能が付けられる給湯器を設置できているので、ここはポジティブに捉えていただけると。 さらに、部屋に入った瞬間の温かさの秘密も教えてもらいました。古いサッシのままの窓には内窓を設置して二重窓とし、さらに必要な部分には断熱材を入れることで、古いマンションにありがちな暑さ寒さ対策をしているそうです。 オーナーのこだわりポイントを列挙してしまいましたが、明るくてふんわりと柔らかく、心地よく過ごせそうな部屋だなという第一印象です。お子さんがいるご家族なら、朝ごはんの後はリビングで子供と遊んだり、目の前の奥田公園に散歩に出かけたり。お二人暮らしでのんびりと外を眺める時間が穏やかに流れていくような。そんな部屋だなと。 実際に同じマンションに住んでいる方の声としては、駅から近いのに、公園が目の前にあるということで抜けがよく日当たりがいいこと、また急に必要なものがあっても駅チカなのですぐに買いに行ける安心感もこのマンションならではだと、言っていました。 マンションは築57年というレトロさですが、共用部などのメンテナンスはしっかりとしている印象で、管理員さんもいつもにこやか。お子さんがいるご家庭から、ご高齢の方まで、さまざまな世帯がありそうです。いま、ちょうど耐震補強工事の実施に向けた説明会や、それにともない中期修繕積立金の改定を実施(現時点では、2029年7月末までを予定)しています。 これからも藤沢という湘南の中心で、このマンションは素敵にあり続けてほしい、そんな気持ちを胸に。湘南移住の一歩目としておすすめしたいです。 |
![]() |
|
| キッチン方向を見てみる。カウンターは岐阜で求めたケヤキの一枚板 |
|
| バルコニー側の掃き出し窓の方を見てみる。かすかに公園で遊ぶ子供たちの声がします |
|
| LDK。可動棚やカウンターなどがあり、そのまま使いこなせそう |
|
| キッチンも、見た目の素敵さと機能性を兼ね備えます |
|
|
| >>大きな地図で見る  |
| 価格 | 3,180万円 | 専有面積 | 67.62㎡ |
| 管理費 | 8,240円 | 修繕積立金 | 18,885円 |
| 所在地 | 藤沢市鵠沼東 | ||
| 交通 | JR東海道本線「藤沢」駅 徒歩8分 | ||
| 建物構造 | 鉄骨鉄筋コンクリート造 10階建て | 所在階 | 5階 |
| 築年 | 1969年 | 土地権利 | 地上権 |
| 面積 | 都市計画 | 市街化区域 | |
| 用途地域 | 商業地域 | 建蔽率/容積率 | 80%/400% |
| その他費用 | 中期修繕積立金:7,150円/組合費:3,500円/自治会費:200円 | 取引態様 | 媒介 |
| 設備 | 都市ガス/公営水道/公共下水/電気(一括受電方式) | ||
| 備考 | ペット不可/地目:宅地/分譲会社:東急不動産株式会社/施工会社:東急建設株式会社/管理会社:株式会社東急コミュニティー/管理形態:全部委託/総戸数:171戸/現況:空室/引渡時期:相談/地上権契約期間:2029年12月まで/準防火地域/景観計画地域内/事務所利用:不可/民泊:不可/エレベーター:スキップ式(1・3・6・9階に停止)/売主の契約不適合責任免責 | ||
| 情報修正日時 | 2026年3月8日 | 情報更新予定日 | 2026年3月25日 |
あなたにおすすめの物件


