|
|
|
||||||||||||||||||||
変わり種オレンジ |
||||||||||||||||||||||
|
||||||||||||||||||||||
|
||||||||||||||||||||||
|
||||||||||||||||||||||
|
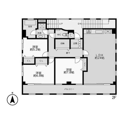
材木座海岸へ向かうバス通り沿いに、オレンジの外観が印象的な建物があります。太陽をサンサンに浴びた温暖な海チカらしい風合い。実はこのオレンジ、ちょっと変わり種。 正面から見てみると、上部にはアーチ窓、中央にはガラスブロック、開口部も含めすべて対称的に配置されています。1階では診療所が開かれ、看板がアクセントに。起動音が聴こえてきそうな機械的な表情をしているようにも見えてしまうのは私だけでしょうか。 路地に面した外階段や外壁はコンクリート。表面のフレッシュな印象とは異なり、トーンが落ち着いています。リビングに入ると、一面にずらっと並んだガラスブロック。明かりに満たされた約24帖の広さに思わず声が出てしまいます。このギャップには驚きました。 円形のダイニングテーブルを置いたり、自由に葉を伸ばした観葉植物を並べたくなります。家具選びやレイアウトは工夫したいところ。材木座には、道具を長く大切に扱うことをコンセプトにセレクトされた生活雑貨店があります。鎌倉のアンティークショップには、食器や農具等この地ならではのモノに出会えることもあるので、それぞれ足を運び、気になるアイテムを探してみてください。 洋室は3部屋。各部屋のドアはただの板ではなく、重厚感があります。LDKと洋室6.8帖、7.8帖からは南側バルコニーに出られます。端のスペースに腰かけて本を読んだり、風呂上りにはビールを一杯。そんな時間もいいですね。浴室の全面グリーンタイルもかわいい。使用する桶、ボディソープやシャンプーの容器は、緑に映えるような黄色や白を選び、花のような配色にしたい。 バス通りに面した窓を開けてみると、海岸へ向かう人々の声や車から陽気な音楽が聴こえてきます。向かいの商店の様子や散歩をして嬉しそうなワンちゃんの様子も見えて、穏やかな環境です。 駅までは徒歩18分。敷地内に駐車場と駐輪場はありませんが、近隣にはレトロなパン屋、文具店、町中華にコーヒー店。個性豊かな商店が点在しています。きっとワクワクする道のりになると思います。海へも歩けば10分ほど、海チカらしい暮らしも始められそうです。 |
![]() |
|
| 24帖の広々としたLDK│ガラスブロックとバルコニーからの明かりで満たされます |
|
| 窓を開けると街を歩く人々の声や犬の鳴き声、車の陽気な音楽がうっすらと聴こえてきます |
|
| バルコニー│南側がまるまる半屋外空間に |
|
| 洗面台│グリーンのタイルがかわいい浴室 |
|
|
| >>大きな地図で見る  |
| 賃料 | 22万円 | 専有面積 | 96.98㎡ |
| 敷金 | 1ヶ月 | 礼金 | 1ヶ月 |
| 償却 | 1ヶ月 | 管理費 | なし |
| 所在地 | 鎌倉市材木座三丁目 | ||
| 交通 |
JR横須賀線「鎌倉」駅 徒歩18分 JR横須賀線「鎌倉」駅 バス11分 「五所神社」バス停 徒歩1分 |
||
| 建物構造 | 鉄筋コンクリート造 3階建て | 所在階 | 2階 |
| 築年 | 1989年 | 取引態様 | 媒介 |
| 設備 | 公営水道/公共下水/都市ガス | ||
| 備考 | ペット不可/駐車場:無/駐輪場:無/普通借家契約(期間:2年/更新料:新賃料1か月)/賃料保証会社加入:必須(初回保証料:月額賃料等の50%、更新料:1年毎に10,000円〜)/振込手数料:月額440円/鍵交換代:有/仲介手数料:賃料の1ヶ月分+消費税/要火災保険契約 | ||
| 情報修正日時 | 2026年3月20日 | 情報更新予定日 | 2026年4月3日 |
あなたにおすすめの物件


