|
|
|
||||||||||||||||||
伸びしろワンルーム |
||||||||||||||||||||
|
||||||||||||||||||||
|
||||||||||||||||||||
|
||||||||||||||||||||
|
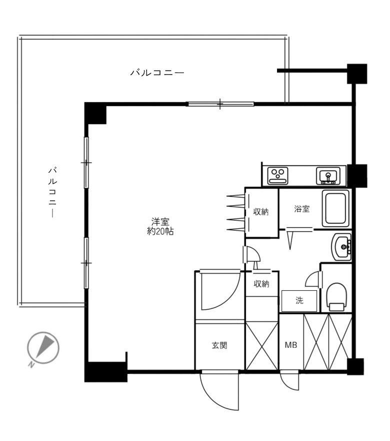
この部屋のオーナーは、逗子マリーナが建設されるよりも前から小坪の地に暮らし、いまでも住み続けているという方。小坪の良さを知り尽くしたオーナーから、この部屋を受け継いでくれる新しい住まい手を募集します。 室内に入って感じたのは、角部屋ならではの採光の良さと、抜けのある景色。東側からは小坪漁港ののどかな漁師町が覗ける一方、南側からは相模湾と中庭、リゾートのような景色が広がります。異なる表情を楽しめるのが、この部屋の魅力。 オーナーのご両親がセカンドハウスとして使われていたこともあり、使用感は少なめ。室内は2年前にリフォーム済で、クロスやフローリングは綺麗な状態。トイレや浴室もそのまま使えます。建具は一部新築当時から使われているもの。古いものの良さを生かして、全体の建具の色味は合わせるなど、統一感を持たせています。 このままでも充分暮らせるのですが、もっと開放感を味わうには?もっと自分らしさを加えるためには?と考えてみたところ、キッチンの位置や収納のあり方、ふとしたデッドスペースに、「もう少しこうできそう」という余白が残されていました。 例えば、奥まった場所にあり、窓に背を向けることになってしまうキッチン。思い切って位置を変えてみてはどうでしょう(現在の間取りでいうと収納のあたり)。セカンドハウスや一人暮らしのための部屋と考えれば、キッチン設備はもう少しコンパクトにしてもいいかもしれません。部屋の中央にカウンターテーブルを造作すれば、コーヒータイムや食事の時間も、視線の先には海、という暮らしが叶いそうです。 そうなると、いまのキッチンの位置にはベッドが置けそう。居室と寝室空間を分けたい場合は、布やブラインドでゆるく仕切って。暗さの気になる玄関まわりは、壁を取り払ってしまうのもひとつ。収納にはあえて扉をつけず、見せる前提でラフに造作するのも良いと思います。 床は遮音等級が決まっているため、現状は少しふかふかした踏み心地です。もちろんそのままでもいいのですが、床材を変えてアップグレードしたり、ラグを敷いてみても良いかもしれません。 間取りを大きく変えず、今あるレイアウトを活かしながら手を加えていくのも面白そうです。取っ手やドアノブなど小さなパーツを変えるだけでも印象は変わりますし、照明をこだわりのあるものに変えたり、スイッチプレートを交換したり、ドアやキッチンに色を塗っても良い。あれこれと構想を膨らませる時間も、楽しみのひとつです。 最後に。逗子マリーナは号棟ごとにルールはもとより表情が違いますが、中庭やロビー、ポストまわりの雰囲気も含めて、この4・5号棟のやわらかさが個人的には好きです。 まだまだ伸びしろのあるワンルーム。こだわりを持って部屋を作りたい。けれどゼロから始めるのはハードルが高いという方へ。愛情持ってこの部屋を成長させて欲しいと思います。 |
![]() |
|
| 反対から見て。暗さの気になる玄関まわりは、壁を取り払ってしまうのもひとつ。床にはラグを敷いたり、床材自体を変えてアップグレードしても良いかもしれません |
|
| 奥まった場所にあるキッチン、思い切って位置を変えてみては。空いたスペースにはベッドを配置して。居室と寝室空間を分けたい場合は、布やブラインドでゆるく仕切るのが良いと思います |
|
| 南側の窓からは、相模湾と4-5号棟の中庭が広がっています。リゾートな景色 |
|
| 東側の窓からは、小坪漁港ののどかな漁師町が覗けます。異なる雰囲気を楽しめるのが良い |
|
|
| >>大きな地図で見る  |
| 価格 | 3,880万円 | 専有面積 | 56㎡ |
| 管理費 | 18,170円 | 修繕積立金 | 10,120円 |
| 所在地 | 逗子市小坪五丁目 | ||
| 交通 |
JR横須賀線「鎌倉」駅 バス14分 「リビエラ逗子マリーナ」バス停 徒歩3分 JR横須賀線「逗子」駅 バス14分 「小坪」バス停 徒歩8分 |
||
| 建物構造 | 鉄筋コンクリート造 9階建て | 所在階 | 4階 |
| 築年 | 1975年 | 土地権利 | 所有権 |
| 面積 | 都市計画 | 市街化区域 | |
| 用途地域 | 第二種住居地域 | 建蔽率/容積率 | |
| その他費用 | 取引態様 | 媒介 | |
| 設備 | 公営水道/公共下水/都市ガス | ||
| 備考 | ペット可(飼育細則あり)/分譲会社:太陽不動産興業株式会社/施工会社:竹中工務店株式会社/管理会社:株式会社リビエラリゾート/管理形態:全部委託(日勤)/総戸数:111戸/バルコニー面積:18.9㎡/現況:空室/引渡時期:相談/駐車場:オーナーズカード貸与有り、屋外平置き駐車場のフリー区画を利用可/駐輪場:1台につき預り金1,500円要(2026年3月22日時点で敷地内空き有)/バイク置き場:1台につき預り金1,500円要(2026年3月22日時点で敷地内空き無、別区画に無料で駐輪可) | ||
| 情報修正日時 | 2026年3月27日 | 情報更新予定日 | 2026年4月14日 |
あなたにおすすめの物件


