|
|
|
||||||||||||||||||
風景に流れる曲線 |
||||||||||||||||||||
|
||||||||||||||||||||
|
||||||||||||||||||||
|
||||||||||||||||||||
|
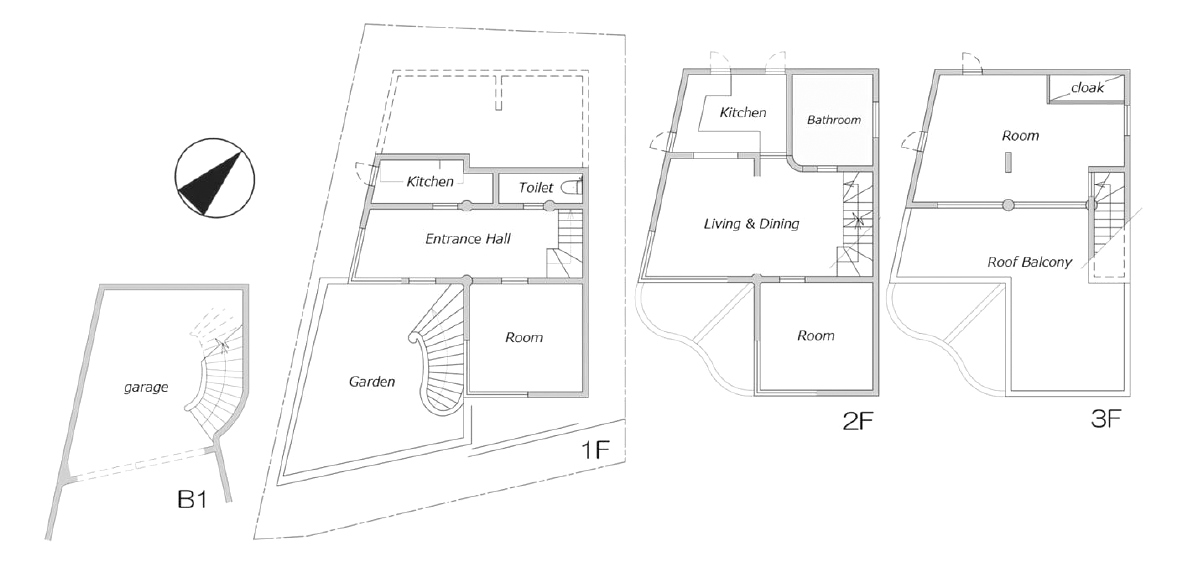
緑に囲まれた環境にある鉄筋コンクリート造の家。よく見ると建物になめらかな曲線があって柔らかい印象を受けます。雲の形や山の稜線、木や枝の描く線のように自然界には完全な直線は存在しないと聞いたことがありますが、そのような風景に建物は馴染んでいます。 曲線を楽しむ瞬間を1つご紹介。駐車スペースから螺旋階段を上るとコンパクトな庭があります。玄関前から庭を見ると上下に流れるような曲線の壁があり、まるでシャコガイの中から外の世界を眺めているような感覚になりました。 当物件にはもう1つ大きな特徴があります。それはドアを開けたら清々しいほどのスケルトンが現れること。1階から3階まで室内全体が、躯体むき出し状態で出迎えてくれます。キッチンや風呂を含む設備、内装は全て撤去済み。間仕切り壁もないので広く感じます。 これほどまでにすっきりとした空間を目の当たりにすると、妄想が膨らみます。例えば、1階はギャラリーとして使うのはどうでしょう。床は全面土間にして、むき出しのコンクリート壁に絵を飾り、作品を展示する。来客時には「靴のままどうぞ」が合言葉になりそうです。 南側には大きなコーナー窓があり日当たりも良いため、観葉植物を置いて緑豊かな空間にするも良し、趣味の道具が多い方は、それらを見せる収納や作業場にするのも良いと思います。 2階の旧リビングダイニングはスキップフロアになっています。丸柱をシンボルとして活かしつつ、床には木材を敷き詰めて温かみのある雰囲気にしたり、タイルを部分的に取り入れて素材のコントラストを楽しむのも一案です。 3階は寝室にして、朝起きたら目の前のルーフバルコニーに出て身体を伸ばしたい。空は思いのほか広く、風が心地いいです。澄んだ空気と静けさが鎌倉の穏やかな環境であることを教えてくれます。 水まわりも工夫できそうです。せっかくなら、既製品ではなく造作キッチンにしてみたい。例えば、シンクの位置や作業台の高さ、収納の取り方も自分の動線に合わせて設計すれば、料理の時間がいっそう楽しくなるでしょう。 浴室もユニットバスに頼らず、素材や形を自分の感覚で決めたいところ。モルタル仕上げの床に木製の浴槽を合わせたり、壁に大判タイルを貼ってホテルライクに仕上げるのもいいな。 ここまでは私の妄想の一部です。全てを削いだスペースにあなたは何を生み出し、どのような暮らしを実現させたいですか。 ※図面は内装撤去前の間取りです。 |
![]() |
|
| 玄関を開けるとコンパクトな庭│なめらかな曲線が空間を切り取ります |
|
| 庭から建物を見上げるとこんな感じ |
|
| 左:玄関ポーチ|右:地下カースペースより玄関ポーチへ |
|
| ルーフバルコニーからの眺望|周囲が緑に囲まれています |
|
|
| >>大きな地図で見る  |
| 価格 | 8,000万円(税込) | 建物面積 | 105.73㎡ |
| 管理費 | なし | 修繕積立金 | なし |
| 所在地 | 鎌倉市笛田五丁目 | ||
| 交通 |
江ノ島電鉄線「長谷」駅 徒歩19分 JR横須賀線・湘南新宿ライン「鎌倉」駅 バス10分 「打越」バス停 徒歩2分 |
||
| 建物構造 | 鉄筋コンクリート造 3階建て | 所在階 | |
| 築年 | 1984年 | 土地権利 | 所有権 |
| 敷地面積 | 135.17㎡ | 都市計画 | 市街化区域 |
| 用途地域 | 第一種低層住居専用地域 | 建蔽率/容積率 | 40%/80% |
| その他費用 | 取引態様 | 媒介 | |
| 設備 | 公営水道/公共下水/プロパンガス | ||
| 備考 | 地目:宅地/現況:空室/引渡時期:相談/カースペース1台まで/第二種風致地区/宅地造成工事規制区域/土砂災害警戒区域内(一部土砂災害特別警戒区域内)/建物検査済証あり/道路は建築基準法第43条第2項の許可を要する道路状空地 | ||
| 情報修正日時 | 2025年11月8日 | 情報更新予定日 | 2025年11月25日 |
あなたにおすすめの物件


