|
|
|||||||||||||||||||
芝とオペラ |
||||||||||||||||||||
|
||||||||||||||||||||
|
||||||||||||||||||||
|
||||||||||||||||||||
|
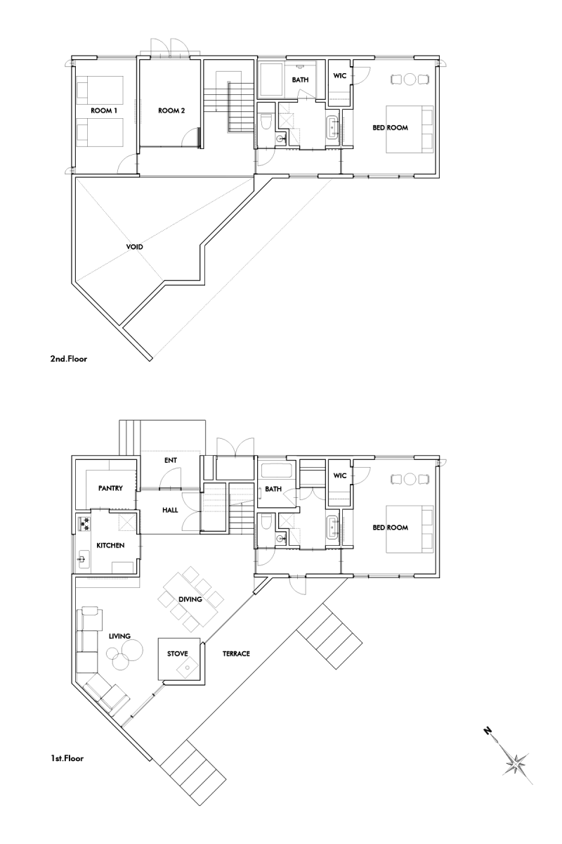
<*A棟ご成約となりました*> なぜオペラは総合芸術と呼ばれるのか、それはオーケストラによる音楽、歌、舞台装置などすべてが生もので構成され、同じ作品を何度上演しても同じものが出来ることはないからだと言われているそうなのです。 この家の庭には広い芝生があり、そして視線を少し上に向けると押立山の裾野がゆったりと広がります。このリビングから見える風景もまた、芝生や山や空の色、そして晴れや雨や雪、時に雷など、迫力のある自然の変化が魅力です。 そこに加えて迎えるゲストや家族、仲間。そうした登場人物や料理などで、まるでオペラのように、一期一会な体験として記憶に残る時間を過ごすことができるのではないかなと思ったのです。 ここは軽井沢。鎌倉とは異なる山のスケール感や空気の感じに驚かされますが、それでもどこか親和性も感じてしまう不思議な関係だなといつも思っています。もしかすると、それはそこで得られる体験が場所や空間の魅力と結びつきやすいからなのかもしれません。 約1,000㎡(300坪)の敷地を持った新築が2025年8月に2棟完成しました。いずれも大きな庭に面したリビングが印象的です。どちらも大きな庇がありテラスにも連続した空間となっていて、ホームパーティーに大活躍する空間となることでしょう。また寒い時期には薪ストーブがリビングの中心となって灯りと温もりを囲む時間を楽しむことができます。 ゲストを呼ぶ準備もしっかり整っていて、カースペースはそれぞれ3台分ゆったり止まります。軽井沢駅まで迎えに行くにも車で10分程度です。室内も二家族でも使えるくらいに水まわりや個室が充実しています。浴室は1,2階で景色の見え方が違ったり、浴室の作り込みが異なるので、ゲストに合わせて使い分けてみたりするとホストとしても楽しい使い方ができるのではないでしょうか。洗面台や化粧室もそれぞれあるので、気兼ねなく人を呼べると思います。 キッチンはひとつ。A棟ではリビングや外のテラスとつながっていて、みんなでワイワイと使うオープン型。料理中にも庭や山々を見ながら作業ができるのもうれしい。B棟のキッチンはしっかり独立型。玄関から直接アクセス可能なパントリーとも隣接しているので、重いものや土が付いたままの新鮮な高原野菜もスムーズに扱えると思います。こちらはしっかり作り込めそうなキッチンです。足元もすっきりしていて上品な印象。 階段や廊下も抜かりなく素敵です。A棟ではキッチンと階段が一体の空間になっており、オープンな空間を演出しています。さらに2階に上がり正面のROOM2の扉を開け放てば階段ホールの延長のようなオープンスペースを作ることができ、子どもたちのプレイルームとして使えば、下の階のキッチンにいても子どもたちの様子が漏れ聞こえるので程よい距離感を生み出すことができそう。 B棟は大胆な吹き抜けに面した2階の廊下が魅力です。階段からこの廊下とROOM2を一体利用することでこの家全体を使った楽しみ方ができます。寒い時期は薪ストーブの暖かさを2階でも感じることできると思うので、軽井沢の冬を楽しむ記憶としてこの家のポテンシャルが発揮されるのではないでしょうか。 そして個室です。それぞれに窓の形や天井の勾配、木材の見せ方、窓の外の風景など、間取り図では想像できない居心地の良さがあります。毎回行く度に、今度はどの部屋を寝室にしてみようか悩んでしまうくらい。個人的にはFIXとなっている正方形の窓のそばに机を置いて仕事部屋にしてみたいななんてカッコつけたことを妄想してしまいました。 なかなかBIGサイズな家ので、語り尽くすことができませんが、内見に行く際にも気候や天気、時間など、軽井沢らしい空気の中で、この家の使い方をあれこれ想像してもらえたらうれしいです。 <A棟> *ご成約 <B棟> 土地面積:1,078.45㎡(326.21坪) 建物延床面積:184.04㎡(55.67坪) 価格:3億3,800万円 |
![]() |
|
| B棟リビング|吹き抜けから2階部分までを一体利用ができると、より一層この家を楽しみ尽くすことができる。 |
|
| B棟リビング|中心には薪ストーブ、そして背景に芝と山々。こうした風景が一期一会の時間を生み出してくれることでしょう。 |
|
| 外観|A,Bの2棟はシンボルツリーや腰高まで石積みでゆるやかな境目をつくることで、一体となった風景を作り出している。 |
|
| B棟外観|庭から建物を見る。背景の木々に包まれてた様子がとても素敵。SOLIDという無垢のセメント材の質感も自然に馴染む変化が楽しみ。 |
|
|
| 価格 | 3億3,800万円(税込) | 建物面積 | 184.04㎡ |
| 管理費 | なし | 修繕積立金 | なし |
| 所在地 | 長野県北佐久郡軽井沢町 | ||
| 交通 | JR北陸新幹線、しなの鉄道「軽井沢」駅 5㎞(車約10分) | ||
| 建物構造 | 木造 2階建て | 所在階 | |
| 築年 | 2025年 | 土地権利 | 所有権 |
| 敷地面積 | 1,078.45㎡ | 都市計画 | 非線引き区域 |
| 用途地域 | 第一種低層住居専用地域/第一種住居地域 | 建蔽率/容積率 | 30~60%/50~200% |
| その他費用 | 取引態様 | 媒介 | |
| 設備 | 公営水道/個別浄化槽/プロパンガス | ||
| 備考 | 地目:原野/総戸数:2戸/現況:空室/引渡時期:相談/A棟については共有地負担部分約24㎡が含まれます。B棟については、共有通路負担部分約76.34㎡が含まれます。また、通路部分に、共有地負担部分約18㎡が含まれます。当該通路部分及び共有地につき、第三者所有地と覚書の締結を予定しています(目的:通行)。/景観法/宅地造成等規制法/庭付き/バイク置場あり/駐車場あり(3台) | ||
| 情報修正日時 | 2025年9月10日 | 情報更新予定日 | 2025年12月27日 |
あなたにおすすめの物件


