|
|
|
||||||||||||||||||
北鎌倉のヒュッゲ |
||||||||||||||||||||
|
||||||||||||||||||||
|
||||||||||||||||||||
|
||||||||||||||||||||
|
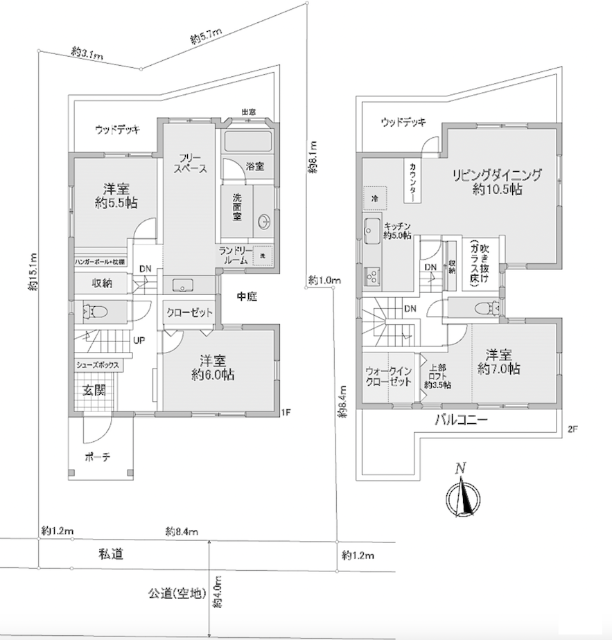
AIに「ヒュッゲって何?」と聞くと、こんな答えが返ってきます。 ヒュッゲ(Hygge)とは、デンマーク語で「居心地の良い空間」「心地よい時間」を意味し、心からの満足感や幸福感を得る状態や、それを生み出すライフスタイルのこと。日本語の「ほっこり」「まったり」に近いニュアンスで、日常のささやかな幸せを大切にする北欧の価値観です。 なるほど。北欧デザインの洗練された空間だけを指す言葉だと思っていましたが、どうやらそうではないらしい。日本人が「なんだか落ち着く」「ここ、いいな」と感じる瞬間も、立派なヒュッゲなのです。この家に足を踏み入れたとき、真っ先にその言葉が頭に浮かびました。 北鎌倉の高台にある住宅地。車通りから一本入っただけで、驚くほど静かな空気に包まれます。周囲には派手さはないけれど、どこか品のある家並み。長く丁寧に暮らしてきた気配が、エリア全体からにじみ出ています。 玄関に入ると、まず感じるのは清潔感とシンプルさ。壁に掛けられたコートや鏡、小物たちが控えめに迎えてくれて、この先にどんな空間が続いているのか、自然と期待が高まります。 この家の特徴は、南北に段差を持つスキップフロア構造。玄関は中二階のような位置にあり、同じフロアには4帖の洋室があります。そこから階段を上がると、正面に主寝室と大型のウォークインクローゼット。ペールトーンで柄物を組み合わせた壁紙が落ち着いた雰囲気。家具や照明とのバランスもよく、肩の力がすっと抜ける空間です。 一方、玄関フロアから北側へ数段下がると、リビングダイニングが現れます。北向きながら決して暗さはなく、窓の向こうの緑とやわらかな光が室内に入り込む。天井には高低差をつけ、梁をあらわしにすることで、空間にほどよいリズムが生まれています。 さらに面白いのが、ソファを置いたくつろぎスペースの傍が透けて見え一瞬、手すりのない吹き抜けかと驚くのですが、実は強化アクリル越しに洗面所が見える仕掛け。暗くなりがちな1階にやわらかな光を届けてくれます。 北側の掃き出し窓から出られるウッドデッキも魅力的。きちんと手入れされており、晴れた日はコーヒー片手に緑を眺めたくなる場所です。 再び玄関フロアに戻り、さらに数段下がると5.5帖の洋室とバスルーム、洗面所。隣接するフリースペースは、風呂上がりにそのまま腰を下ろしてまったりしたくなる居心地の良さ。洗面所の上部は吹き抜けで明るく、広がりがあり、家の中とは思えない感覚です。 2009年築のこの家は、2年前にオーナーがフルリフォームを施しました。もともとのスキップフロア構造を活かしながら、遊び心と落ち着きが共存する住まいへと生まれ変わっています。 すでにちょっと北欧のテイストも感じられるこの家をあなたらしく理想の”ヒュッゲにしてみてはいかがでしょう。日常の中にある、ささやかな心地よさを、きっと大切にしたくなるはずです。 |
![]() |
|
| 居心地のよいダイニング。オーナーは1日中ここに居られるそう |
|
| 寝室はトーンを変えてぐっすりと休める空間に |
|
| 普通の家じゃない、この感じ。素敵です |
|
| ソファコーナーの右下はシースルーで洗面所が見える |
|
|
| >>大きな地図で見る  |
| 価格 | 6,500万円 | 建物面積 | 101.85㎡ |
| 管理費 | なし | 修繕積立金 | なし |
| 所在地 | 鎌倉市台 | ||
| 交通 | JR横須賀線「北鎌倉」駅 徒歩11分 | ||
| 建物構造 | 木造 2階建て | 所在階 | |
| 築年 | 2009年 | 土地権利 | 所有権 |
| 敷地面積 | 141.84㎡ | 都市計画 | 市街化区域 |
| 用途地域 | 第一種低層住居専用地域 | 建蔽率/容積率 | 40%/80% |
| その他費用 | 取引態様 | 媒介 | |
| 設備 | 公営水道/公共下水/都市ガス | ||
| 備考 | 地目:宅地/現況:居住中/引渡時期:相談/セットバック済:11.77㎡/埋蔵文化財包蔵地/土砂災害警戒区域/ 前面道路が建築基準法の接道要件を満たしていないため原則再建築不可。但し特定行政庁の許可を得られれば建築可能 | ||
| 情報修正日時 | 2025年12月20日 | 情報更新予定日 | 2026年1月5日 |
あなたにおすすめの物件


