足柄下郡湯河原町吉浜の売買物件/リビングからの眺望は浮き足立ってしまいそうですが、なぜかここは落ち着くのです
足柄下郡湯河原町吉浜の売買物件/ルーフバルコニーから南側眺望。熱海、伊豆方面の山並み
足柄下郡湯河原町吉浜の売買物件/山から海へ2方向の眺めをソファに座ったままで、じっくりと
足柄下郡湯河原町吉浜の売買物件/キッチンは簡素に無骨に。海を眺めながら調理
足柄下郡湯河原町吉浜の売買物件/和室は整った空間
足柄下郡湯河原町吉浜の売買物件
足柄下郡湯河原町吉浜の売買物件/和室側から眺め
足柄下郡湯河原町吉浜の売買物件/キッチンの窓から
足柄下郡湯河原町吉浜の売買物件/キッチンはステンレス製の特注品。高カロリーのガスレンジ、テーブル型冷凍冷蔵庫を設置
足柄下郡湯河原町吉浜の売買物件/北西側洋室は二部屋をつなげて約13.5帖。棚はオーナーがDIYで造作、塗装
足柄下郡湯河原町吉浜の売買物件/棚右側がトイレのスイングドア、玄関
足柄下郡湯河原町吉浜の売買物件/シャワーブースと洗面コーナー。こちらもオープンです
足柄下郡湯河原町吉浜の売買物件/玄関を両方向から見たところ
足柄下郡湯河原町吉浜の売買物件/トイレは北西側洋室、玄関側の2方向から出入り可能
足柄下郡湯河原町吉浜の売買物件/シャワーブースは浴室乾燥暖房付き(ミストサウナ機能有り)
足柄下郡湯河原町吉浜の売買物件/玄関上のトップライトは最上階ならでは
足柄下郡湯河原町吉浜の売買物件/手前が玄関、右に出てすぐエレベーターがあります
足柄下郡湯河原町吉浜の売買物件/1階エントランス
足柄下郡湯河原町吉浜の売買物件/1階ロビー
足柄下郡湯河原町吉浜の売買物件/1階ロビー
足柄下郡湯河原町吉浜の売買物件/南側バルコニーから見た専有部分と塔屋
足柄下郡湯河原町吉浜の売買物件/東は湘南方面の眺望と海
足柄下郡湯河原町吉浜の売買物件/西側のお屋敷の庭の借景もすばらしいのです
足柄下郡湯河原町吉浜の売買物件/南側、大島や初島も望めます
足柄下郡湯河原町吉浜の売買物件/北西は真鶴の山並み
足柄下郡湯河原町吉浜の売買物件/建物外観とエントランス

sale   NEW 住宅

いや、むしろ"隠れ家アジト"

 
価格:
4,880万円
面積:
93.23㎡
所在地: 足柄下郡湯河原町吉浜
交通: JR東海道本線「真鶴」駅 徒歩8分
管理費 37,630円
修繕積立金: 19,770円

JRの駅から徒歩8分。車を使わなくても、この眺めに辿り着けるという事実だけで、少し驚きます。専有面積は93.23㎡。それだけでも十分にゆとりがありますが、この部屋の本質はそこではありません。


専用のルーフバルコニーが145.70㎡。数字を聞くと一瞬身構えますが、実際に立ってみると、広さよりも「自由さ」が先にやってきます。マンション最上階、しかも1フロア1住戸のペントハウス。そう聞けば、ガラス張りでラグジュアリーな空間を想像するかもしれません。


でも、ここはまったく違う。初めて足を踏み入れたとき、湘南エリアでよく目にする“眺望自慢の最上階”とは、空気が違うと感じました。窓は大きく、光もたっぷり入るのに、どこか落ち着いている。むしろ隠れ家。あるいは秘密基地。「アジト」という言葉が、いちばんしっくりきます。


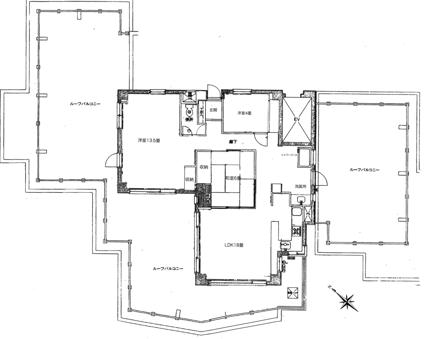
それもそのはず。この部屋は、オーナー自身が手を動かし、解体、造作してつくり上げてきた空間なのです。もともと4LDKだった間取りは3LDKへ。建具は和室と納戸を除いて撤去し、視線と空気が抜けるオープンな構成に変えられています。


設備は要所をプロに任せつつ、考え方はかなり攻めています。ユニットバスは撤去し、シャワーブースのみ。理由はマンション5階に共同浴場があるから。キッチンは特注のステンレス製。ガス台は高カロリー仕様、冷凍冷蔵庫は業務用のテーブルタイプでその上に無垢の一枚板を載せて、作業台兼カウンターにしています。また、食洗機も備えています。


収納や玄関のシューズボックスは、オーナー自作。構造用合板をあえてラフに使い、扉は付けず、リネンやファブリックで目隠しするスタイル。その日の気分で変えられる自由が残されています。


床は和室以外すべて無垢のヒノキ材に張り替え、段差も解消。リビング、キッチンと北西側洋室は床暖房が入っています。塗装は一度では終わらせず、何層も重ねることで、古材のような深い色味と艶をつくり出してきました。これがペントハウスの煌びやかさではない落ち着きを演出しているのでした。さらに壁面の一部はコンクリートスラブを現しにして、空間を引き締めています。


この部屋に辿り着くまでの動線もよいのです。エレベーターで一度7階で降り共用廊下を進み、乗り換えて最上階へ。少し手間はかかりますが、それが逆に“特別な場所に帰る”感覚を強めてくれます。10階のボタンを押すのは、たぶん自分だけ。ドアが開けば、そこは完全に自分の領域です。


玄関を入ると、和室の襖と額装された水墨画。この先はどんな空間なのだろう、と想像しながら廊下を進むとシャワーブース、洗面コーナー、そしてリビングダイニングへ。大きな窓の向こうには、真鶴の山並みと相模湾。視界が一気にひらけます。ルーフバルコニーは、とにかく広大。天気の良い日はここで過ごす時間が、生活の中心になるでしょう。


何をするかは、住む人次第です。不思議なのは、ペントハウスなのに、気持ちが浮き足立たないこと。エレベーターを降り玄関をくぐった瞬間に、すっと落ち着く。この部屋が目指してきたのは、特別であることより自分にとって「しっくりくる場所」であることだったのかもしれません。


眺めのいい最上階という言葉では足りない。ここは素晴らしい風景を背負った、大人のアジトです。

>>大きな地図で見る 
価格 4,880万円 専有面積 93.23㎡
管理費 37,630円 修繕積立金 19,770円
所在地 足柄下郡湯河原町吉浜
交通 JR東海道本線「真鶴」駅 徒歩8分
建物構造 鉄筋コンクリート造 10階建て 所在階 10階
築年 1992年 土地権利 所有権
面積 都市計画 市街化区域
用途地域 第一種住居地域 建蔽率/容積率 60%/200%
その他費用 ルーフバルコニー使用料:5,000円 取引態様 媒介
設備 公営水道/公共下水/集中プロパンガス
備考 ペット不可/地目:宅地/分譲会社:朝日住宅株式会社/施工会社:前田建設工業株式会社/管理会社:株式会社合人計画研究所/管理形態:全部委託/総戸数:58戸/バルコニー面積:145.7㎡/現況:利用中/引渡時期:相談/駐車場:有(月額5,000円、2026年2月現在)/湯河原町景観計画/設計:株式会社レーモンド設計事務所
情報修正日時 2026年3月5日 情報更新予定日 2026年3月19日
※掲載の情報が現状と異なる場合には、現状を優先するものとします。